Executive family living on a large plot with double garage and versatile reception space.
South‑west facing expansive rear garden and multiple patio areas
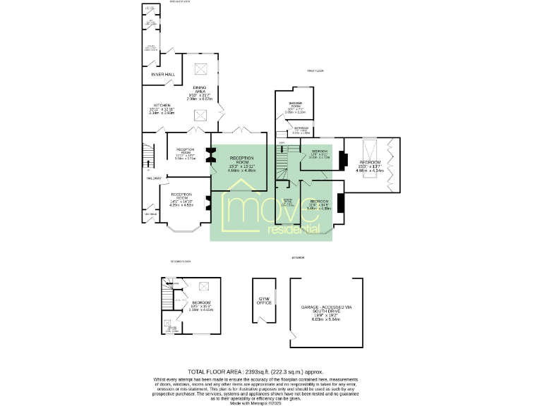
An imposing five-bedroom semi‑detached family home arranged over three floors, set on a large plot in desirable Heswall. The house balances handsome period features — bay windows, high ceilings and decorative dormers — with high-spec contemporary fittings, most notably a bespoke Merilyn Phillips breakfast kitchen with vaulted dining area.
Living space is versatile and bright: a bay-fronted lounge, formal dining room, large family room and additional sitting room give flexible reception layouts for family life. The principal bedroom benefits from fitted wardrobes and a vaulted ceiling; a further four bedrooms include a second-floor double with its own en suite, making this an excellent fit for a growing or multi-generation household.
Outside, expansive south‑west facing gardens, a wide driveway and a detached double garage provide generous outdoor space, off‑street parking and potential for a gym, home office or studio. Local schools rated Good and low local crime make the location family-friendly, while excellent mobile and fast broadband support home working.
Buyers should note some practical considerations: the EPC currently sits at band D (potential C), cavity walls are likely uninsulated (as built), and council tax is described as expensive. These factors may warrant improvement works to increase energy efficiency and reduce running costs. Overall, the property offers substantial, executive family accommodation with scope to enhance efficiency and personalise further.
5 bedroom detached house for sale in Thurstaston Road, Lower Heswall, Wirral, CH60 — £1,100,000 • 5 bed • 3 bath • 4200 ft²
4 bedroom detached house for sale in Delavor Road, Lower Heswall, Wirral, CH60 — £725,000 • 4 bed • 1 bath • 1800 ft²
5 bedroom detached house for sale in Well Lane, Heswall, Wirral, CH60 — £1,100,000 • 5 bed • 2 bath • 2982 ft²
3 bedroom semi-detached house for sale in Telegraph Road, Heswall, Wirral, CH60 — £600,000 • 3 bed • 2 bath • 1406 ft²
6 bedroom detached house for sale in Long Meadow, Gayton, Wirral, CH60 — £1,000,000 • 6 bed • 3 bath • 3100 ft²
4 bedroom detached house for sale in Oldfield Road, Heswall, Wirral, CH60 — £949,950 • 4 bed • 3 bath • 2400 ft²






























































































































































































































