Spacious contemporary living close to shops, schools and transport links.
Brand new three-storey semi-detached house, 2,369 sq ft
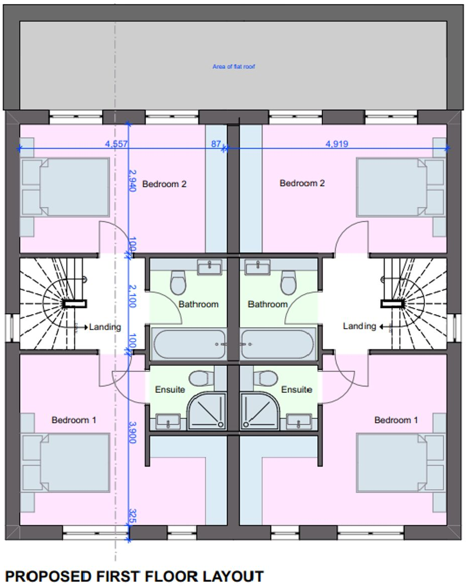
This newly built, three-storey semi-detached house offers a generous 2,369 sq ft layout designed for family life and flexible use. Finished to a high standard throughout, the property provides four well-proportioned bedrooms, three bathrooms including a master en-suite, and contemporary living spaces with high ceilings and bay windows.
Externally the plot benefits from off-street parking and an attractive, modern-traditional brick facade that sits within a small, exclusive run of three plots. Freehold tenure and no flood risk add practical reassurance, while excellent mobile signal supports home working and connectivity.
Buyers should note local context: the wider area is very affluent but the immediate neighbourhood records above-average crime rates. Broadband speeds are average and one nearby secondary school has an Ofsted rating of Inadequate, while another requires improvement — primary provision includes Good-rated options.
This is a strong proposition for families seeking bright, spacious accommodation in a sought-after address, or buyers wanting a low-maintenance new build with scope to personalise finishes. The limited availability of just three plots increases exclusivity, but purchasers should weigh local schooling and crime statistics alongside the property's clear strengths.
4 bedroom semi-detached house for sale in Mill Street, Ormskirk, L39 2AU, L39 — £495,000 • 4 bed • 3 bath • 710 ft²
3 bedroom detached house for sale in Molyneux Road, Aughton, L39 — £450,000 • 3 bed • 3 bath • 1884 ft²
3 bedroom semi-detached house for sale in Broken Stone Road, BB3 — £256,995 • 3 bed • 2 bath • 2255 ft²
4 bedroom detached house for sale in Old Town Lane, Formby, L37 — £1,500,000 • 4 bed • 4 bath • 4400 ft²
3 bedroom semi-detached house for sale in Off Lickers Lane, Whiston, Merseyside, L35 3SR, L35 — £260,000 • 3 bed • 1 bath • 501 ft²
4 bedroom detached house for sale in Longmeanygate Road,
Midge Hall,
Leyland,
PR26 7TB, PR26 — £395,000 • 4 bed • 1 bath • 1276 ft²






































