Large redevelopment or income conversion near hospital and transport links.
- Freehold former factory with vacant possession
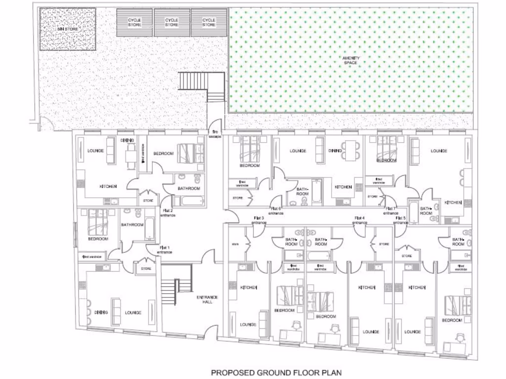
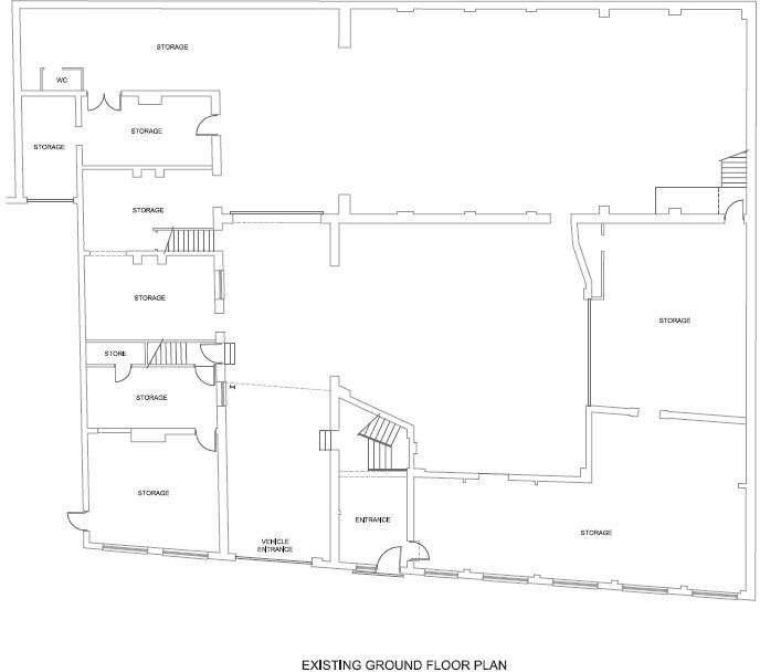
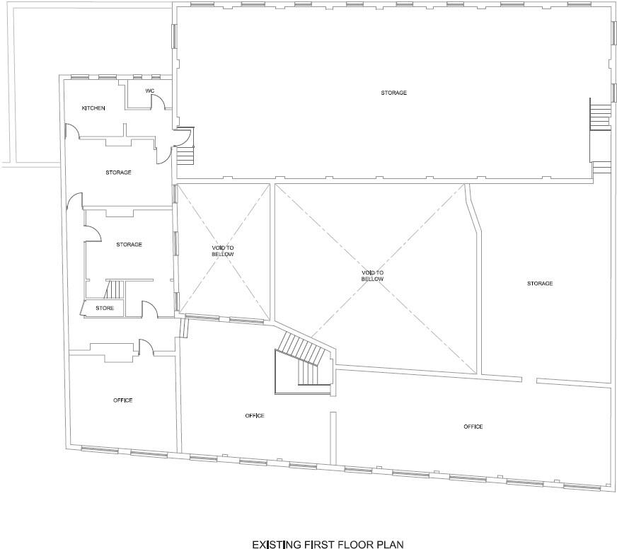
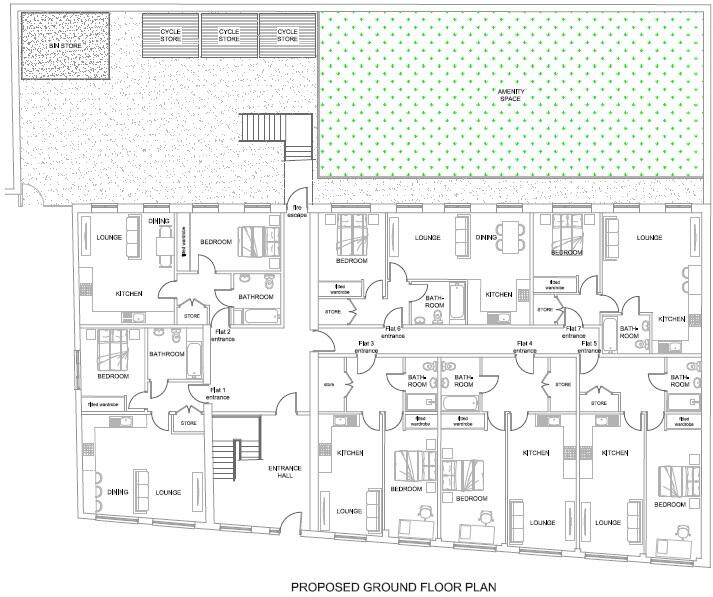
A substantial freehold former factory offering 13,320 sq ft of flexible space in central Gillingham, presented with vacant possession and an unconditional guide price of £750,000. The building sits just off the A2, opposite Byron Primary School and within a mile of Gillingham town centre and station, giving strong local connectivity and practical access for redevelopment or continued commercial use. Indicative plans show potential for conversion to 21 one‑bed flats subject to planning — a clear value‑add route for developers or investors.
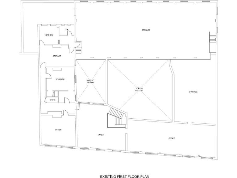
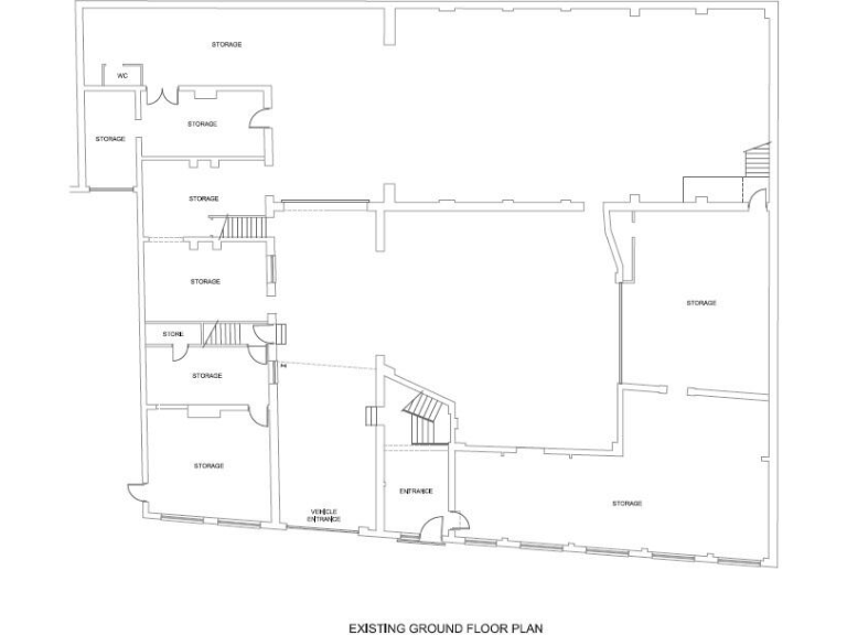
The property is robustly constructed (solid brick, mid‑terrace, c.1900–1929) with double glazing, mains gas heating and an EPC rating of C (74). On‑site parking is limited to 2–3 spaces; internal accommodation includes large open warehouse areas, workshops, first‑floor offices and two former flat areas. A small basement/garage area is unfinished and requires repair.
Buyers should note material constraints: the site sits in a deprived area with higher local crime levels, parts of the building are neglected and will need refurbishment, insulation is likely absent in the solid walls, and redevelopment will require securing planning consent. Business rates for the property are significant (RV £40,250; approx. £20,085 payable 2025/26). These factors lower the acquisition price and create potential for uplift via conversion or refurbishment.
Light industrial facility for sale in Top Gear Car Sales, Beechings Way Industrial Centre, Gillingham, Kent, ME8 6AD, ME8 — £999,999 • 1 bed • 1 bath • 2855 ft²
Light industrial facility for sale in Unit 13, Church Road Business Centre, Church Road, Sittingbourne, Kent, ME10 3RS, ME10 — £295,000 • 1 bed • 1 bath • 2956 ft²
Light industrial facility for sale in 11 Castle Road Business Precinct, Castle Road, Eurolink, Sittingbourne, Kent ME10 3RP, ME10 — £185,000 • 1 bed • 1 bath • 1539 ft²
Land for sale in Cross Street, Gillingham, Kent, ME7 — £80,000 • 1 bed • 1 bath
Land for sale in 32 Montfort Road, Strood, Rochester, Kent, ME2 3EU, ME2 — £550,000 • 1 bed • 1 bath • 2060 ft²
Light industrial facility for sale in Gillingham Railway Station, Gillingham, Medway, ME7 1YF, ME7 — POA • 1 bed • 1 bath • 13504 ft²






































































