Period charm and private outdoor space for first-time buyers.
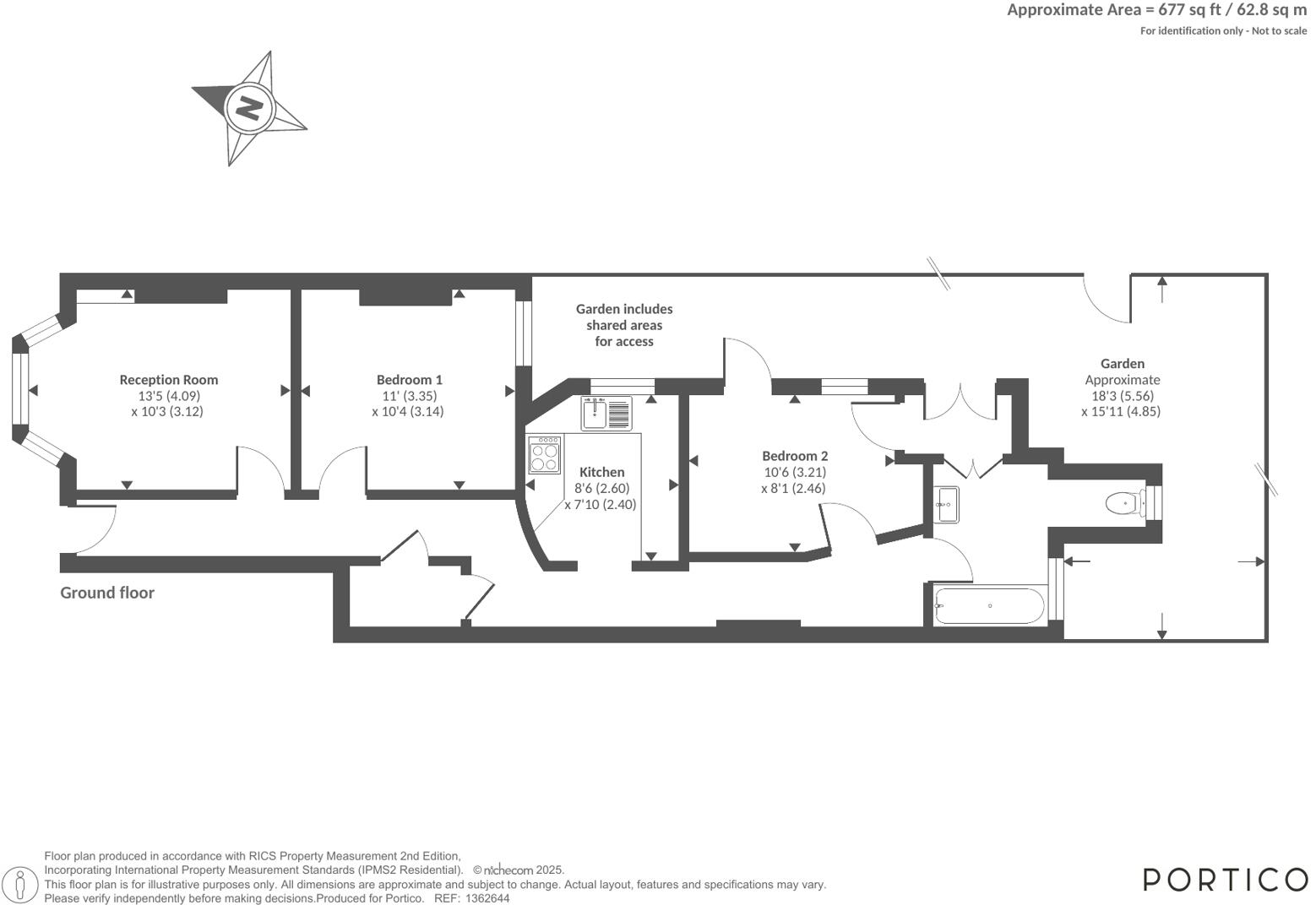
Two double bedrooms with period features and high skirtings
Private rear garden with gated side access and parking potential
Modern kitchen and classic white bathroom, move-in ready
Leasehold: 140 years remaining (long lease)
Ground rent £150pa; service charge charged ad hoc
Solid brick construction; may benefit from added insulation
Exterior suggests some modernisation required in places
Close to Stamford Brook, Wendell Park, shops and good schools
Light, airy and well-located, this two-double-bedroom garden maisonette combines period character with practical modern updates. The front reception room retains a bay window, high skirtings and other period details, while a recently fitted kitchen and a classic white bathroom make the flat move-in ready. A private rear garden and gated side access add useful outdoor space and the potential (subject to permissions) for off-street parking.
The apartment sits on a quiet, tree-lined stretch of Valetta Road close to Stamford Brook (District Line), Wendell Park and local shops on Askew and Turnham Green Terrace. The neighbourhood is affluent and well served for schools, so the home will suit first-time buyers and professional couples seeking space, character and good transport links.
Practical points are straightforward: the property is leasehold with 140 years remaining, a small ground rent of £150pa and an ad hoc service charge. Constructed around 1900–1929 with solid brick walls, the building may benefit from insulation upgrades over time. The exterior suggests some modernisation and there may be scope to increase value through careful refurbishment or reconfiguration (subject to planning and structural advice).
Overall this maisonette offers a comfortable, characterful base in a desirable W3 location. It’s particularly attractive to buyers wanting a period home with a private garden, close to parks and transport, while also offering potential to add value through thoughtful improvement.
2 bedroom apartment for sale in Valetta Road, London, W3 — £500,000 • 2 bed • 1 bath • 664 ft²
3 bedroom apartment for sale in Valetta Road, London, W3 — £835,000 • 3 bed • 2 bath • 1168 ft²
2 bedroom maisonette for sale in Hartswood Road, Wendell Park, Shepherd's Bush, W12 — £700,000 • 2 bed • 1 bath • 789 ft²
2 bedroom maisonette for sale in Emlyn Road, Wendell Park, Shepherds Bush, W12 — £675,000 • 2 bed • 1 bath • 707 ft²
2 bedroom maisonette for sale in Lavington Road, London, W13 — £795,000 • 2 bed • 1 bath • 907 ft²
2 bedroom maisonette for sale in Fletcher Road, London, W4 — £599,950 • 2 bed • 1 bath • 705 ft²


























































