Spacious garden, handy outbuildings and parking near the village school.
Well-presented three-bedroom semi-detached family home
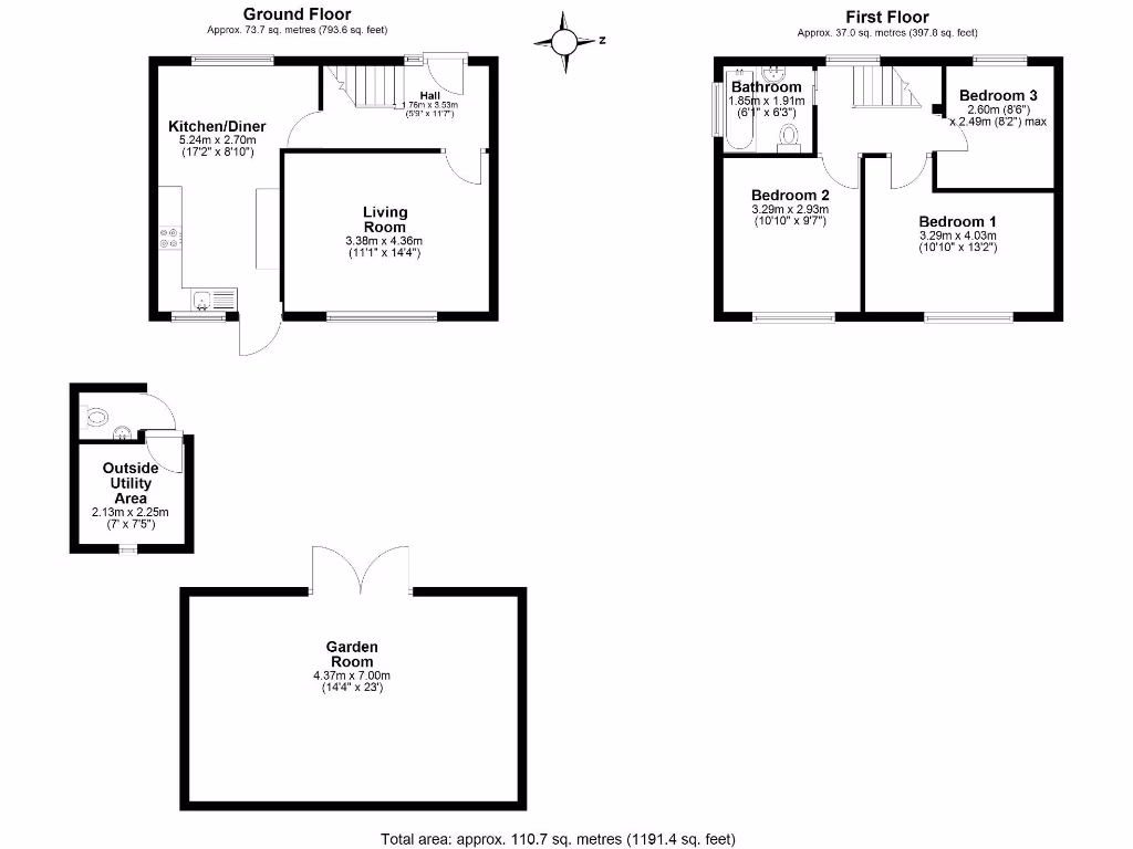
This well-presented three-bedroom semi-detached house sits in a popular Barton-le-Clay street, roughly 0.3 miles from the nearest school. The ground floor offers a bright living room and a fitted kitchen/diner with direct access to a generous, landscaped rear garden — ideal for children to play or for outdoor entertaining.
Outside, the large rear plot is a standout feature: multiple patio areas, an outbuilding with a W.C. and utility space, plus a separately powered garden room suitable for an office, playroom or social space. Off-street parking to the front and a garage en bloc provide additional storage and parking options, though the garage is not attached to the house.
Upstairs are three comfortable bedrooms served by a refitted family bathroom. The property is freehold, double-glazed, gas central heated via boiler and radiators, and totals about 1,191 sq ft — a straightforward layout for growing families. The local area is quiet, affluent and well connected to amenities and surrounding countryside.
Buyers should note a few practical points: there is a single family bathroom for three bedrooms, the garage is en bloc rather than integral, and the exact installation dates for glazing and some services are unknown. A routine inspection of services, drainage and structure is recommended before exchange.
3 bedroom semi-detached house for sale in Meadhook Drive, Barton-Le-Clay, MK45 4RH, MK45 — £367,000 • 3 bed • 2 bath • 921 ft²
3 bedroom semi-detached house for sale in Dane Road, Barton Le Clay, Bedfordshire, MK45 4QL, MK45 — £450,000 • 3 bed • 2 bath • 1302 ft²
3 bedroom semi-detached house for sale in Norman Road, Barton Le Clay, Bedfordshire, MK45 4PX, MK45 — £405,000 • 3 bed • 1 bath • 983 ft²
4 bedroom detached house for sale in Old Road, Barton-Le-Clay, MK45 4LB, MK45 — £860,000 • 4 bed • 3 bath • 1913 ft²
3 bedroom detached house for sale in Fisher Close, Barton-Le-Clay, MK45 — £375,000 • 3 bed • 2 bath • 1174 ft²
3 bedroom end of terrace house for sale in Wiffen Close, Barton-Le-Clay, MK45 4FR, MK45 — £365,000 • 3 bed • 2 bath • 479 ft²






















































