Chain-free, garden access and close to Walthamstow Central for easy commuting.
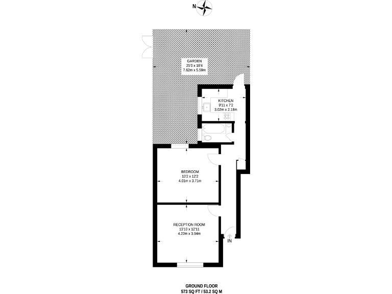
Ground-floor one-bedroom flat with private rear garden
A bright, ground-floor one-bedroom flat with private garden in the heart of Walthamstow. The property sits in a period conversion and offers a large bedroom, a compact contemporary kitchen opening onto the garden, and a living room with neutral finishes — ready to occupy or update to add further value.
This chain-free leasehold flat (573 sq ft) is well placed for commuters, moments from Walthamstow Central, St James Street and local bus links. Nearby amenities include cafes, shops and strong primary schools such as South Grove Primary (Outstanding), making this practical for first-time buyers seeking convenience and future resale potential.
There are clear areas to consider: the building’s solid brick walls likely lack cavity insulation, the double glazing install date is unknown, and the area records higher-than-average crime and local deprivation. The property is served by mains gas boiler and radiators; a small annual ground rent (£150) applies. Buyers should budget for cosmetic updates or energy-efficiency improvements to maximise long-term value.
Overall, this flat offers an affordable entry into E17 with garden space and commuter convenience. It will particularly suit buyers who want a ready-to-live-in home with scope to personalise or investors seeking uplift through targeted improvements.
2 bedroom flat for sale in Brighton Avenue, Walthamstow, London, E17 — £475,000 • 2 bed • 1 bath • 536 ft²
2 bedroom flat for sale in Kitchener Road, London, E17 — £350,000 • 2 bed • 1 bath • 600 ft²
1 bedroom flat for sale in Knotts Green Road, Leyton, London, E10 — £350,000 • 1 bed • 1 bath • 476 ft²
2 bedroom flat for sale in Erskine Road, Walthamstow, E17 — £550,000 • 2 bed • 1 bath • 586 ft²
2 bedroom flat for sale in Queens Road, London, E17 — £545,000 • 2 bed • 1 bath • 320 ft²
2 bedroom flat for sale in Flanders Court, Walthamstow, London, E17 — £350,000 • 2 bed • 1 bath • 550 ft²


























































































