**Standout Features:**
- Spacious 5-bedroom, 4-bathroom detached bungalow with loft conversion
- Versatile layout suitable for families or as a bed and breakfast
- Set on a generous and private plot with landscaped outdoor space
- Double glazing, electric heating, and wood-burning stove
- Freehold tenure ensures total ownership
- Located in the charming village of Alford (AB33 8NF)
**Concerns:**
- Average mobile signal and higher-than-average council tax
- Area classified as deprived, with old rural flat tenants
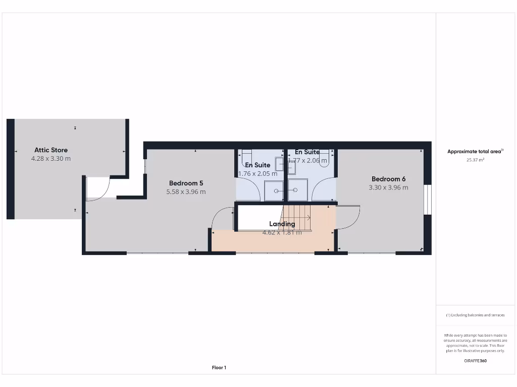
Nestled in the popular village of Alford, this versatile 5-bedroom detached bungalow showcases immense potential for both family living and income generation, making it a rare find in a serene rural setting. With approximately 1,830 square feet of space, the well-maintained property features three en-suite bedrooms and a generously sized family bathroom, providing comfort and convenience for both residents and guests. The inviting lounge and a versatile dining kitchen create perfect areas for relaxation and entertainment.
This home is especially appealing to families and those looking to downsize, with its single-story layout and thoughtful design that encourages easy mobility. The outdoor space offers a beautifully landscaped garden, ideal for enjoying peaceful evenings or hosting gatherings. While the area exhibits signs of deprivation, its strong community spirit and access to local amenities—including a playground, shops, and sports facilities—enhance its charm.
Act quickly to explore the potential for this unique property, as opportunities for such a blend of comfort, privacy, and income potential are not to be overlooked!
3 bedroom bungalow for sale in Bank Brae, Alford, AB33 — £235,000 • 3 bed • 2 bath • 1238 ft²
4 bedroom detached bungalow for sale in Alford, AB33 — £220,000 • 4 bed • 2 bath • 1259 ft²
5 bedroom detached house for sale in Kingsford Road, Alford, AB33 — £280,000 • 5 bed • 2 bath • 1528 ft²
4 bedroom farm house for sale in Alford, AB33 — £305,000 • 4 bed • 2 bath • 2110 ft²
3 bedroom detached house for sale in Kingsford Road, Alford, AB33 — £245,000 • 3 bed • 1 bath • 1561 ft²
2 bedroom detached bungalow for sale in Muir Of Fowlis, Alford, AB33 — £180,000 • 2 bed • 1 bath • 753 ft²


















































































































































