Generous plot, off-street parking and strong school catchment — chain free.
Three good-sized bedrooms plus converted garage occasional fourth bedroom or office
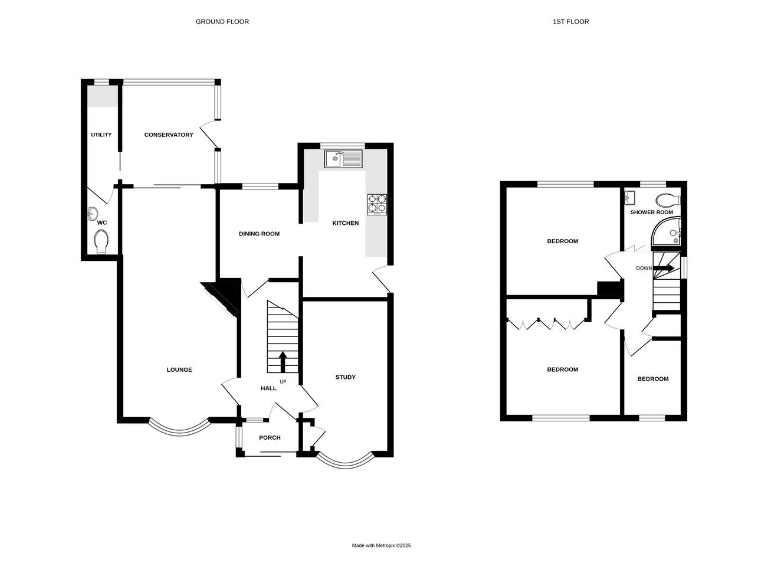
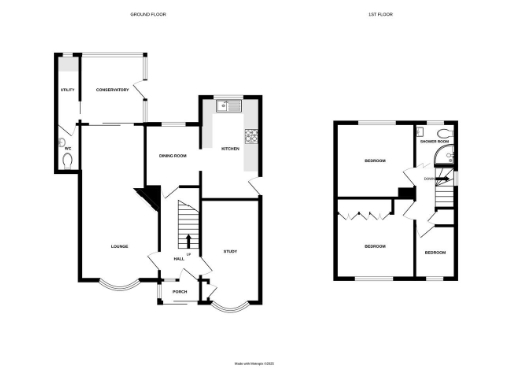
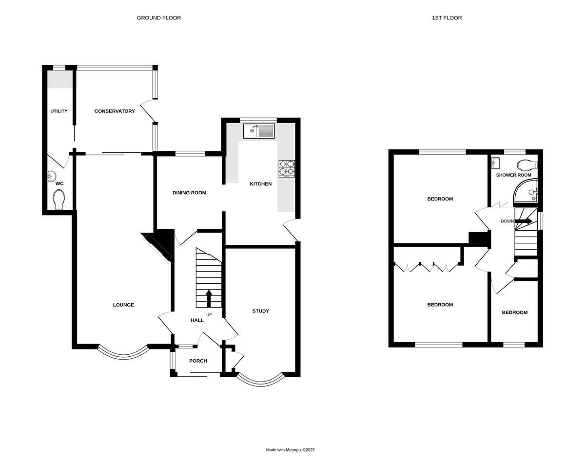
A well-proportioned three-bedroom detached home on a generous plot in Coundon, ideal for families seeking strong school catchment and green space nearby. The layout includes a through lounge/diner, separate dining room, conservatory, utility and a garage conversion currently used as a fourth bedroom or home office. Off-street parking, a broad driveway and a spacious rear garden add practical family living space.
Sold with no upward chain, the house is ready for immediate occupation but shows evidence of mid-20th-century fittings and will benefit from updating to unlock its full potential. The property has scope to extend further (subject to planning) — an attractive prospect for buyers wanting to increase living space or add value. EPC rating D and a single shower room are factual considerations for budget and comfort planning.
Positioned close to Coundon Court playing fields and local parks, the location offers easy access to several ‘Good’-rated primary schools and other community amenities. Coventry city centre and the main train station are within easy reach, making commutes straightforward while retaining a suburban feel.
Overall this detached home suits growing families or buyers wanting renovation potential in a desirable, well-connected neighbourhood. Be aware of dated interior finishes, the converted garage (loss of original garage space), and the modest EPC when planning improvements or energy upgrades.
3 bedroom detached house for sale in Hollyfast Road, Coundon, Coventry, CV6 — £550,000 • 3 bed • 1 bath • 1270 ft²
3 bedroom semi-detached house for sale in Chelveston Road, Coundon, Coventry, CV6 — £375,000 • 3 bed • 1 bath • 1291 ft²
4 bedroom terraced house for sale in Rosslyn Avenue, Coundon, Coventry *No Chain*, CV6 — £280,000 • 4 bed • 2 bath • 1216 ft²
3 bedroom terraced house for sale in Norman Place Road, Coundon, Coventry, CV6 — £265,000 • 3 bed • 1 bath • 928 ft²
3 bedroom semi-detached house for sale in Barkers Butts Lane, Coventry, CV6 — £250,000 • 3 bed • 2 bath • 375 ft²
3 bedroom semi-detached house for sale in Dallington Road, Coventry, CV6 — £250,000 • 3 bed • 1 bath • 803 ft²






































































