Auction opportunity for hands-on investors near Derby universities and amenities.
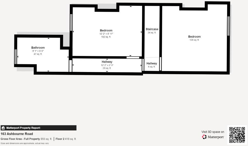
Vacant freehold mid-terrace, circa 855 sq ft
Two reception rooms, two bedrooms, one bathroom
Gas central heating; EPC rating C
Double glazing installed pre-2002; thermal upgrades likely needed
Solid brick walls; assumed no cavity insulation
Small rear garden; potential for rear off-street parking
Will be sold at public auction; unconditional exchange on fall of hammer
Local area: high connectivity but above-average crime and deprivation
A vacant freehold mid-terrace Victorian property offering two bedrooms and two reception rooms across circa 855 sq ft. The house has gas central heating, double glazing and an EPC rating of C — ready for a light-to-medium refurbishment to unlock value. It will be sold at public auction with vacant possession and an administration fee payable on completion.
The rear garden is small but may allow off-road rear parking subject to access and consents, increasing rental or resale appeal. The solid brick walls likely lack insulation and the glazing was installed pre-2002, so buyers should budget for thermal upgrades and potential aesthetic improvements. The property sits in a mixed inner-city area with excellent mobile and broadband connectivity but above-average local crime and higher area deprivation.
This lot suits investors or experienced renovators targeting an inner-city buy-to-let or flipped resale near Derby’s universities and amenities. Make sure to review the legal pack before bidding: auction sale is unconditional on the fall of the hammer and additional costs may apply (administration fee and any special conditions). Viewings are by block appointment and the sale is live-streamed for remote bidders.
2 bedroom terraced house for sale in 41 Radbourne Street, Off Ashbourne Road, Derby DE22 3HD, DE22 — £88,000 • 2 bed • 1 bath • 689 ft²
3 bedroom terraced house for sale in 196 Uttoxeter Old Road, Derby DE1 1NF, DE1 — £85,000 • 3 bed • 1 bath • 1302 ft²
2 bedroom terraced house for sale in Midland Place, Derby, DE1 — £100,000 • 2 bed • 1 bath • 462 ft²
2 bedroom terraced house for sale in Brighton Road, Alvaston, DE24 — £87,500 • 2 bed • 1 bath • 885 ft²
4 bedroom terraced house for sale in Burton Road, Derby, DE1 — £110,000 • 4 bed • 2 bath • 1454 ft²
3 bedroom terraced house for sale in Woods Lane, Derby, DE22 — £110,000 • 3 bed • 1 bath • 829 ft²










































