Extended 1930s family home with open-plan living and garden backing onto playing fields.
Extended four-bedroom detached family home
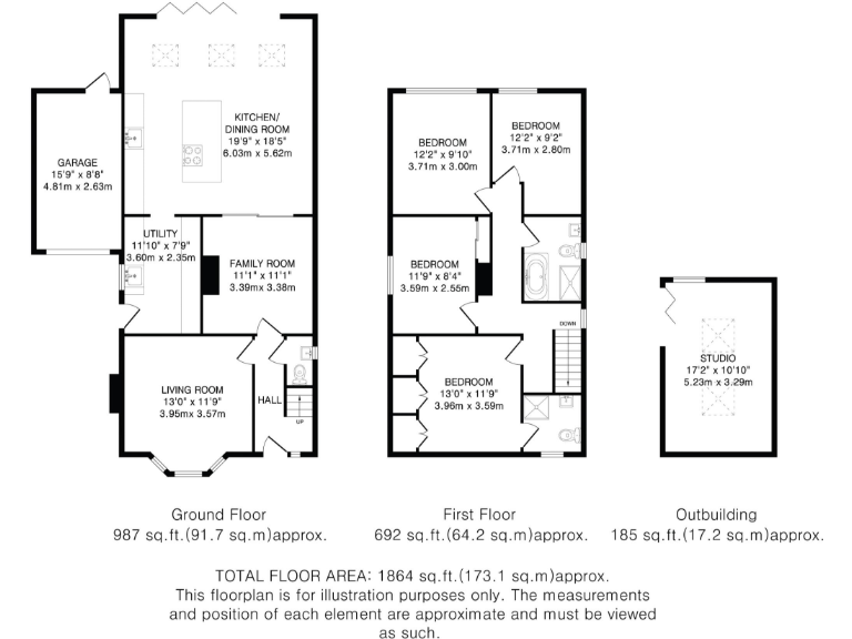
This extended four-bedroom detached home on Old Hale Way combines 1930s period character with contemporary living areas, ideal for growing families. The immaculately presented interior centres on a stunning open-plan kitchen/dining/family room with underfloor heating and bi-fold doors that open onto a west-facing patio and lawn backing onto King George's playing field. A separate living room, utility and cloakroom add everyday convenience, while a principal bedroom benefits from fitted wardrobes and an en-suite.
Outside, a driveway and garage provide off-road parking and an outbuilding with power offers a versatile home office or studio. The plot is a decent size with a private rear garden and entertaining patio. The property is well positioned within walking distance of the mainline station, Hitchin town centre and highly regarded schools, making daily commuting and family life straightforward.
Practical considerations: the house was originally built in the 1930s with solid brick external walls (assumed uninsulated), and council tax is above average. Buyers who prioritise energy efficiency should budget for potential wall insulation or related improvements. Overall this is a well-balanced family home offering immediate comfort and scope for modest upgrading to improve running costs and value.
4 bedroom detached house for sale in Old Hale Way, Hitchin, SG5 1XJ, SG5 — £1,000,000 • 4 bed • 2 bath • 3130 ft²
4 bedroom detached house for sale in Highover Way, Hitchin, SG4 — £650,000 • 4 bed • 2 bath • 1581 ft²
4 bedroom detached house for sale in Grange Close, Hitchin, Hertfordshire, SG4 — £800,000 • 4 bed • 2 bath • 1527 ft²
4 bedroom semi-detached house for sale in Cambridge Road, Hitchin, Hertfordshire, SG4 — £825,000 • 4 bed • 2 bath • 1802 ft²
4 bedroom detached house for sale in Wymondley Road, Hitchin, SG4 — £1,150,000 • 4 bed • 2 bath • 1916 ft²
4 bedroom semi-detached house for sale in Nutleigh Grove, Hitchin, SG5 — £700,000 • 4 bed • 2 bath • 1371 ft²


















































































