**Standout Features:**
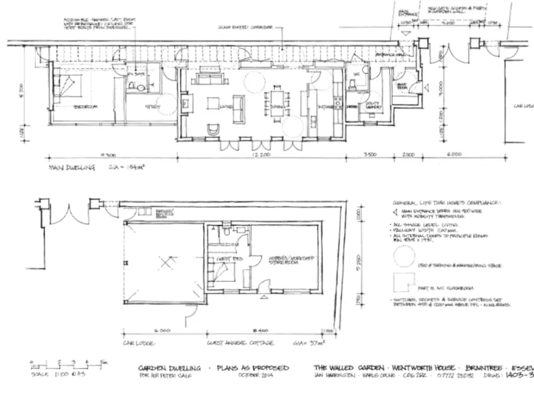
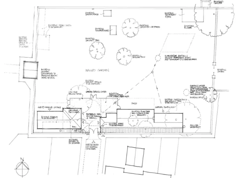
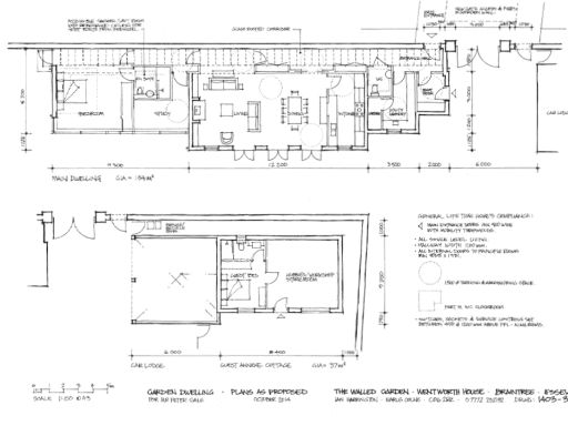
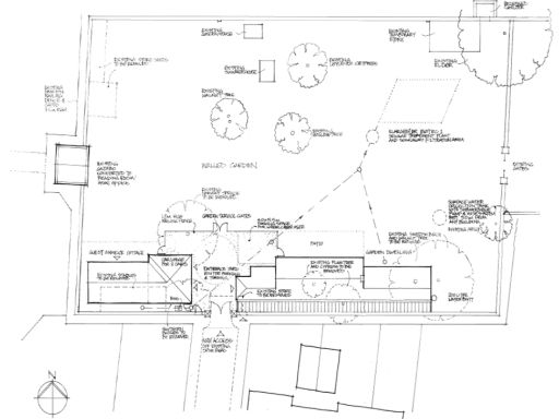
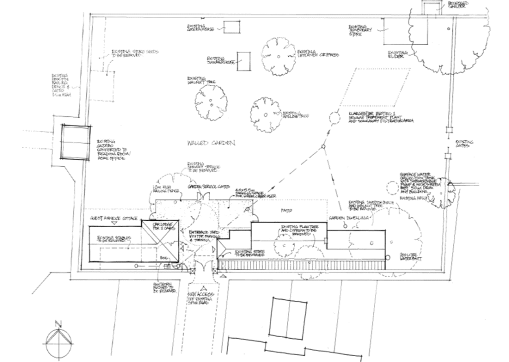
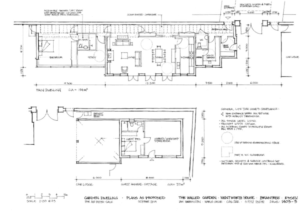
- **Prime Building Land:** 0.57 acres with full planning permission for a single dwelling and an annex (Ref: 15/00343/FUL).
- **Unique Folly Structure:** Enchanting, recently refurbished architectural folly with power, water, and internet access; perfect for a creative project.
- **Historic Location:** Nestled in the charming Bradford Street area of Braintree, offering a blend of history and modern convenience.
- **Flexible Development:** Opportunity to create a bespoke home with the potential for an additional guest annexe and cart lodge for two cars.
- **Affluent Neighborhood:** Located in a community with excellent schooling options and urban amenities within walking distance.
**Summary:**
This exceptional building plot in the historic Bradford Street area of Braintree presents a rare opportunity for buyers seeking to create their dream home. Spanning over half an acre, this site comes with full planning permission for a striking single dwelling and a guest annexe, enhancing its versatility for future living arrangements. The existing architectural folly adds a distinctive character, recently refurbished with just a few finishing touches required. With access to essential utilities including power, water, and internet, this delightful structure can serve as a charming feature or utility space.
Families and investors alike will appreciate the desirable location, close to Braintree town centre and within reach of reputable schools such as Great Bradfords Junior and Infant Schools, both rated 'Good' by Ofsted. The plot is chain-free, offering ease of ownership without the hassle of waiting periods. Given its unique offering and excellent development potential, this parcel of land stands out and won't be available for long. Don't miss the chance to secure your piece of Braintree's historical charm!
Land for sale in Building Plot, Church Street, Braintree, Essex, CM7 5LQ, CM7 — £260,000 • 1 bed • 1 bath • 21780 ft²
Land for sale in Building Plot, 272a Church Street, Bocking, Braintree, CM7 — £260,000 • 1 bed • 1 bath • 21780 ft²
Land for sale in South Street, Braintree, CM7 — £300,000 • 1 bed • 1 bath
2 bedroom bungalow for sale in Kynaston Road, Panfield, CM7 — £500,000 • 2 bed • 1 bath • 765 ft²
3 bedroom detached house for sale in Ardleigh, CO7 — £450,000 • 3 bed • 2 bath • 904 ft²
Plot for sale in Little Braxted, CM8 — £800,000 • 1 bed • 1 bath • 1399 ft²


















































