Income-generating rural residence with parking and flexible living near Cambridge.
Chain free 19th‑century detached house with extensive parking
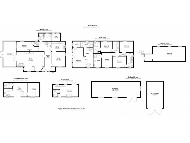
Four self‑contained units producing rental income now
Large plot just under one acre; mature gardens and patio
Electric underfloor heating and double glazing installed
Medium flood risk — may affect insurance and planning
Aerial images show roof damage requiring repair work
Flexible layout for multi‑generational living or holiday lets
Timber‑frame construction noted; buyer surveys recommended
Set on just under one acre on the edge of historic Landbeach, this substantial 19th‑century detached home pairs period character with adaptable living space. The main house plus three additional self‑contained units currently generate income, offering immediate returns or flexible multi‑generational use. Extensive parking and a sweeping gravel driveway suit owners with multiple vehicles or small commercial uses.
The accommodation is arranged across multiple levels and can be reconfigured for larger family living, home offices or holiday lets. Modern upgrades include double glazing and electric underfloor heating, while an on‑site annexe block provides separate tenancy potential. The property’s gardens are mature and private, with a sizeable lawn and patio for outdoor entertaining.
Buyers should note material maintenance requirements: aerial images indicate roof damage that will need repair, and the plot carries a medium flood risk which may affect insurance and future works. The construction details suggest a timber‑frame build; buyers should confirm structural and services surveys before committing. Chain free sale offers straightforward purchase timing.
Positioned a few miles from Cambridge with easy road and rail links to Ely and London, the house sits in an affluent rural neighbourhood with good local schools and village amenities. This is a rare opportunity for purchasers seeking a flexible country residence with income potential and scope for improvement.
4 bedroom detached house for sale in High Street, Landbeach, CB25 — £585,000 • 4 bed • 2 bath • 1873 ft²
4 bedroom link detached house for sale in Waterbeach Road, Landbeach, Cambridge, CB25 — £725,000 • 4 bed • 1 bath • 1880 ft²
5 bedroom detached house for sale in Main Street, Witchford, CB6 — £875,000 • 5 bed • 3 bath • 3320 ft²
6 bedroom detached house for sale in Station Road, Waterbeach, Cambridge, Cambridgeshire, CB25 — £1,000,000 • 6 bed • 3 bath • 2802 ft²
4 bedroom semi-detached house for sale in Abrahams Close, Landbeach, Cambridge, Cambridgeshire, CB25 — £560,000 • 4 bed • 2 bath • 1421 ft²
4 bedroom detached house for sale in High Street, West Wratting, Cambridge, CB21 — £1,000,000 • 4 bed • 3 bath • 2663 ft²


















































































































