Spacious garden and home-office summerhouse close to village amenities and rail links.
- Extended mid-terrace Victorian cottage full of original character
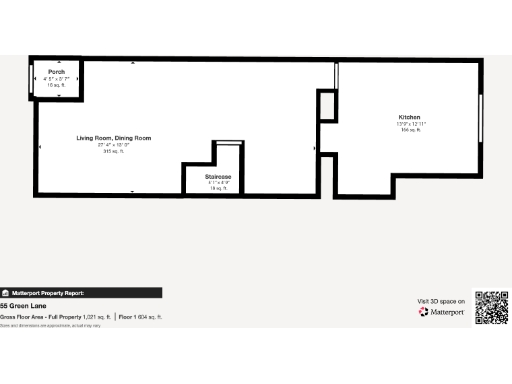
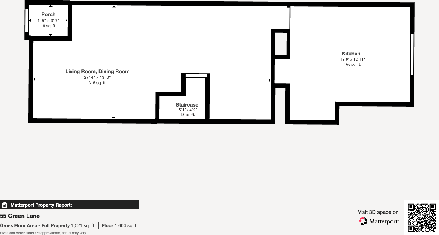
- 27 ft through living room with wood-burning stove
- Stylish kitchen-diner with skylight and garden doors
- Large rear garden with patios, lawn, raised beds and storage
- Summer house with power, lighting and Wi‑Fi — ideal home office
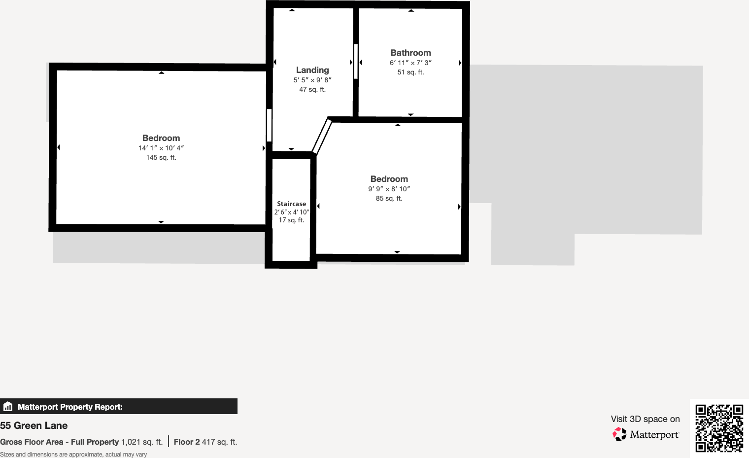
- Two double bedrooms; landing used as a remote working area
- Leasehold with 859 years remaining; nominal ground rent £5
- Traditional stone walls likely uninsulated; consider energy upgrades
A charming extended mid-terrace cottage offering generous living space and an exceptional rear garden. The house keeps much of its Victorian character — exposed beams, original wood flooring and stone features — while the extended kitchen-diner provides a bright, practical hub with skylight and direct garden access.
Accommodation includes a 27 ft through living room with a wood-burning stove and dining area, two double bedrooms and a bathroom. The landing currently doubles as a useful home-working area. The sizeable garden has multiple patios, an enclosed lawn, raised beds, storage and a powered summer house with lighting and Wi‑Fi, ideal for a home office or studio.
Practical points are favourable: mains gas boiler and radiators, double glazing (pre-2002) and excellent mobile and fast broadband. The property is leasehold with a long remaining term and a nominal ground rent, and it sits close to Hadfield village centre, rail links and local amenities — good for commuters and families.
Buyers should note the house is traditional masonry (sandstone/limestone) likely without wall insulation and dates from before 1900; upgrades or insulation works may be wanted to improve energy efficiency. Services, appliances and boundaries should be independently verified prior to purchase.
2 bedroom terraced house for sale in Wesley Street, Hadfield, SK13 — £190,000 • 2 bed • 1 bath • 730 ft²
2 bedroom terraced house for sale in Brosscroft, Hadfield, Glossop, SK13 — £175,000 • 2 bed • 1 bath • 1281 ft²
2 bedroom terraced house for sale in New Road, Tintwistle, Glossop, SK13 — £210,000 • 2 bed • 1 bath • 552 ft²
2 bedroom end of terrace house for sale in Water Street, Glossop, Derbyshire, SK13 — £225,000 • 2 bed • 1 bath • 690 ft²
2 bedroom terraced house for sale in Old Street, Broadbottom, Hyde, SK14 6AS, SK14 — £235,000 • 2 bed • 1 bath • 983 ft²
3 bedroom terraced house for sale in Lambgates, Hadfield, Glossop, Derbyshire, SK13 — £235,000 • 3 bed • 1 bath • 973 ft²






















































































