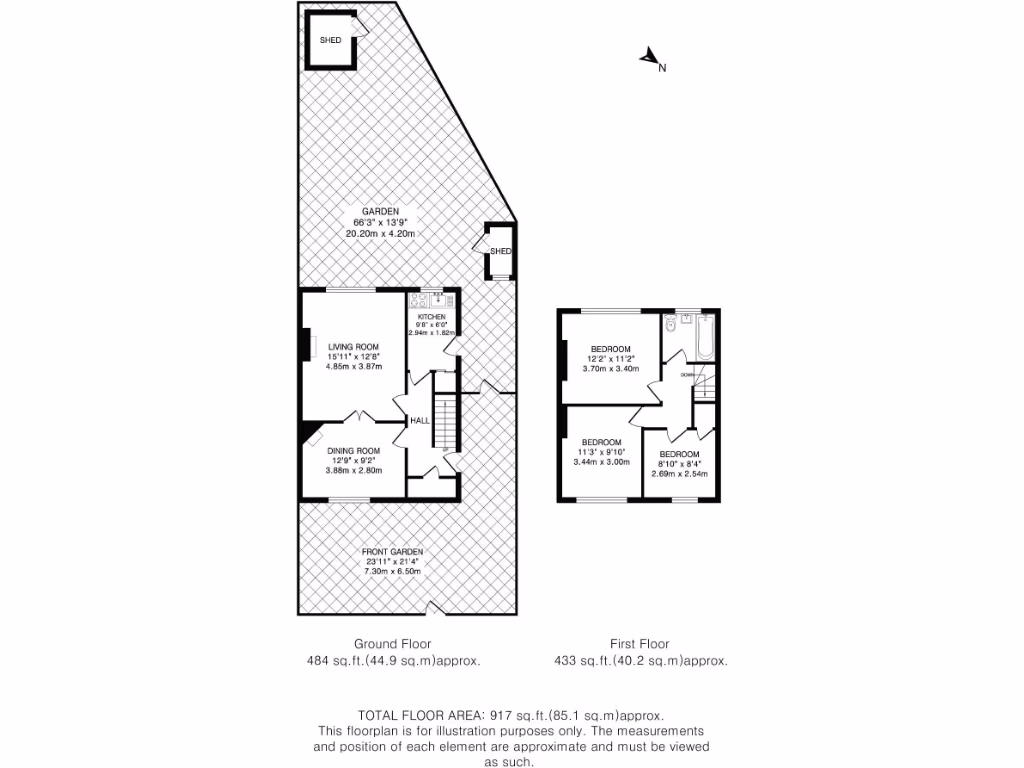
Three-bedroom family home with garden and extension potential.
Chain-free freehold end-of-terrace with three bedrooms
Located on a quiet turning in Burnt Oak, this three-bedroom end-of-terrace offers a straightforward renovation project with strong family appeal. The ground floor layout includes separate dining and living rooms, plus a kitchen with direct garden access — practical for everyday family life and entertaining. Upstairs are three well-proportioned bedrooms and a traditional three-piece family bathroom.
The property is chain-free and freehold, with double glazing (installed post-2002), mains gas central heating and a decent plot with established rear planting. There is scope to extend or improve subject to local planning permission (STPP), and a hardstanding at the front could provide off-street parking if permitted.
Buyers should note the house requires modernisation throughout — dated decor, older finishes and general renovation works are needed to bring it up to contemporary standards. There is only one bathroom and no current planning permission for extensions; any changes will need local authority approval. The nearby transport links, good local schools and Montrose Playing Fields make this a practical long-term family investment for buyers willing to refurbish.
3 bedroom end of terrace house for sale in Abbots Road, Edgware, HA8 — £530,000 • 3 bed • 1 bath • 718 ft²
3 bedroom terraced house for sale in Dryfield Road, Edgware, HA8 — £510,000 • 3 bed • 2 bath • 963 ft²
3 bedroom end of terrace house for sale in Wolsey Grove, Edgware, HA8 — £550,000 • 3 bed • 1 bath • 946 ft²
3 bedroom terraced house for sale in Halford Close, Edgware, HA8 — £575,000 • 3 bed • 1 bath • 850 ft²
2 bedroom terraced house for sale in Burnt Oak Broadway, Edgware, HA8 — £410,000 • 2 bed • 2 bath • 686 ft²
3 bedroom semi-detached house for sale in Burnell Gardens, Stanmore, HA7 — £575,000 • 3 bed • 1 bath • 967 ft²






































































































