**Standout Features:**
- Spacious two-bedroom apartment with a unique industrial design.
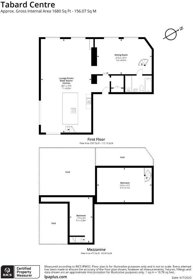
- Total area of 1,680 sq. ft. featuring high ceilings and abundant natural light.
- Grade II listed status offering charm but may face renovation difficulties.
- Share of freehold and included gated parking space.
- Excellent local amenities and transport links.
**Potential Downsides:**
- The property has listed status, which can complicate renovations.
- Area shows above-average crime rates; however, it is in a major conurbation with excellent mobile and broadband connectivity.
Step into this stunning two-bedroom apartment that blends Victorian charm with contemporary industrial aesthetics, ideally located just a mile from the iconic London and Tower Bridge. Spanning nearly 1,700 sq. ft., this unique loft-style space features striking exposed brick walls, polished timber floors, and soaring ceilings filled with light from oversized sash windows. The clever arrangement includes two mezzanine bedrooms, providing added privacy, and an inviting open-plan living and dining area perfect for entertaining.
The stylish kitchen boasts a wooden breakfast bar accompanied by a wine cooler, seamlessly connecting to the expansive living area and an additional comfy reception space. Outside, you can enjoy a private garden area within the gated community, along with assigned parking. Whilst the area boasts great transport links and a vibrant mix of amenities, potential buyers should be aware of the property’s listed status, which may pose challenges for future modifications. With a lively local scene featuring restaurants, theatres, and markets just a stone's throw away, this property offers the opportunity to embrace a cosmopolitan lifestyle in a historic setting—perfect for families or busy professionals looking for a sanctuary in the heart of London. Don’t miss your chance to make this exclusive retreat your new home!
2 bedroom flat for sale in Tabard Centre, Bermondsey, SE1 — £1,250,000 • 2 bed • 2 bath • 1713 ft²
2 bedroom flat for sale in Prioress Street, London, SE1 — £1,250,000 • 2 bed • 2 bath • 1706 ft²
2 bedroom flat for sale in Shad Thames, Shad Thames, London, SE1 — £1,500,000 • 2 bed • 2 bath • 1877 ft²
2 bedroom flat for sale in Tower Bridge Road, Tower Bridge, SE1 — £700,000 • 2 bed • 2 bath • 918 ft²
2 bedroom flat for sale in Lafone Street, London, SE1 — £825,000 • 2 bed • 2 bath • 988 ft²
2 bedroom apartment for sale in Old Kent Road, London, SE1 — £725,000 • 2 bed • 1 bath • 1073 ft²


































































































































































































































































































































































































































































































































































































