Bright three-storey home with south-facing garden and garage.
Four bedrooms with two ensuite shower rooms
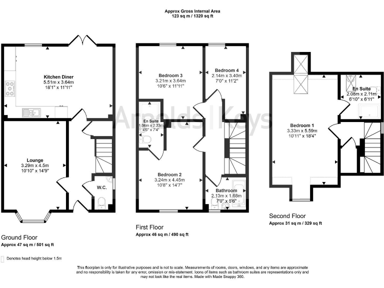
Set on a popular David Wilson Homes development close to Aylsham market place, this modern four-bedroom link-detached house delivers bright, flexible living across three storeys. The top-floor principal bedroom is dual-aspect with its own ensuite, while two further bedrooms are served by a family bathroom and another ensuite on the first floor — useful for family routines or guests. The kitchen-diner opens to a south-facing, enclosed rear garden with extended patio and raised beds, ideal for outdoor family time and entertaining.
Practical benefits include a brick-weave driveway, single garage with power and lighting (currently divided for part storage/workshop), NHBC guarantee and mains gas central heating. Fast broadband and excellent mobile signal support remote working, and the property sits within easy reach of good local schools and the market town amenities, appealing to families who want a semi-rural lifestyle with town conveniences.
Buyers should note the plot is modest in size and the garage has been partitioned, which reduces full internal garage capacity. Council tax sits above average (band E). One room has been used for storage and was omitted from the virtual tour. Overall, the house is well presented and move-in ready but offers clear scope for buyers wanting to reconfigure the garage or personalise finishes to suit long-term needs.
4 bedroom detached house for sale in Buckenham Road, Aylsham, Norwich, NR11 — £375,000 • 4 bed • 2 bath • 1324 ft²
4 bedroom detached house for sale in Union Road, Aylsham, Norwich, NR11 — £360,000 • 4 bed • 2 bath • 1163 ft²
4 bedroom detached house for sale in Elizabeth Way, Aylsham, Norwich, NR11 — £460,000 • 4 bed • 3 bath • 1176 ft²
4 bedroom detached house for sale in Aegel Gardens, Aylsham, Norwich, NR11 — £525,000 • 4 bed • 3 bath • 1787 ft²
3 bedroom detached house for sale in Palmerston Way, Aylsham, Norwich, NR11 — £325,000 • 3 bed • 2 bath • 1002 ft²
4 bedroom detached house for sale in Prince Of Wales Drive, Aylsham, Norwich, NR11 — £515,000 • 4 bed • 2 bath • 1099 ft²


















































































