Refurbished three-bedroom ground-floor apartment with garage and lift access.
New 125-year lease with small ground rent
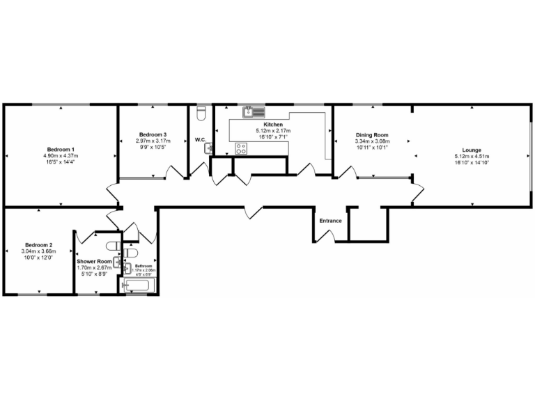
This recently refurbished three-bedroom ground-floor apartment sits in a prestigious purpose-built block moments from Eastbourne’s seafront. A bright 26’ open-plan lounge/dining room and newly fitted kitchen create generous, versatile living space ideal for family life and relaxed entertaining. The property is largely move-in ready with new carpets, internal doors, luxury bathroom and en-suite, and a new 125-year lease.
Practical benefits include lift access, a secure communal entrance, and a single garage for off-road parking. The block’s landscaped front gardens provide outdoor space, while the apartment’s double glazing and gas central heating offer everyday comfort. Broadband speeds are good and local amenities, schools and transport links are an easy walk away.
Notable costs and constraints are presented plainly: the apartment is leasehold with a new 125-year lease, ground rent of £30 per quarter and a service charge of £983 per quarter. Council Tax is Band F and described as expensive. The EPC is D. The local area records higher-than-average crime levels, which buyers should factor into their decision.
Overall, the flat will suit buyers seeking a convenient, low-immediate-maintenance home close to town and the seafront — families and investors who value location, space and a recent comprehensive refurbishment. Be aware of ongoing running costs and local safety statistics when assessing long-term suitability.
3 bedroom flat for sale in Devonshire Place, Eastbourne, BN21 — £425,000 • 3 bed • 1 bath • 1400 ft²
1 bedroom apartment for sale in Hartington Place, Eastbourne, East Sussex, BN21 — £169,950 • 1 bed • 1 bath • 463 ft²
3 bedroom flat for sale in Devonshire Place, Eastbourne, BN21 — £399,950 • 3 bed • 2 bath • 1378 ft²
2 bedroom ground floor flat for sale in Hartington Place, Eastbourne BN21 3BG, BN21 — £375,000 • 2 bed • 1 bath • 835 ft²
3 bedroom flat for sale in Hartington Place, Eastbourne BN21 3BG, BN21 — £450,000 • 3 bed • 1 bath • 992 ft²
1 bedroom ground floor flat for sale in Hartington Place, Eastbourne BN21 3BG, BN21 — £240,000 • 1 bed • 1 bath • 554 ft²














































































































