Chain-free and ready to move into
Decent private rear garden and garage
Off-street parking on driveway
Three bedrooms: two doubles, one single
Dated, small kitchen needs modernisation
Single family bathroom only
Double glazing; mains gas central heating
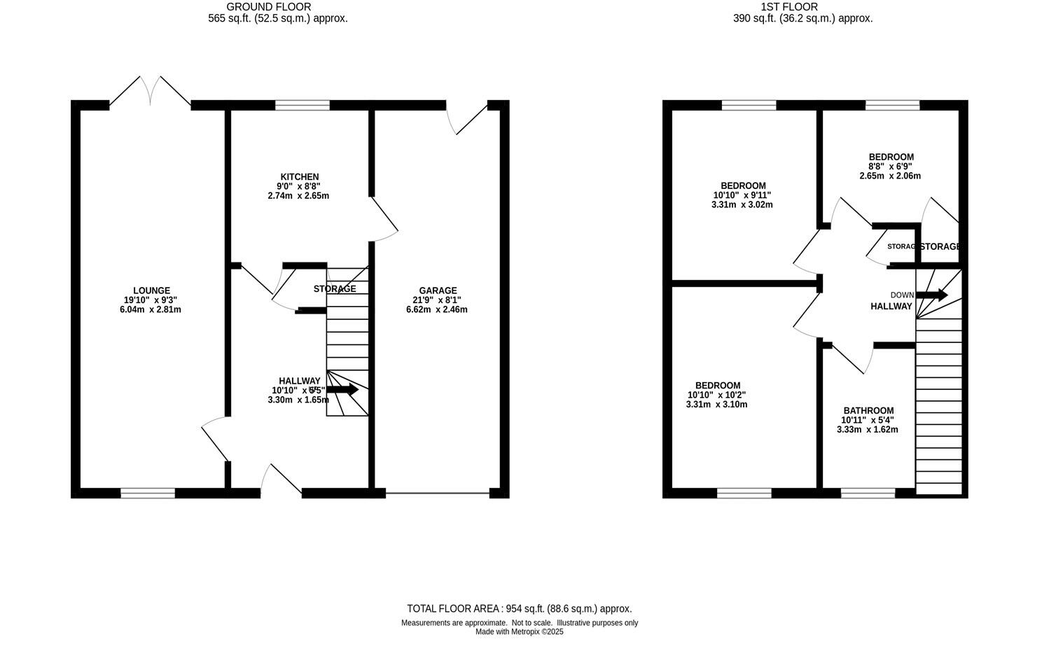
Average size (≈955 sq ft) on a decent plot
This three-bedroom, link-detached home on Kenilworth Road offers practical family living in a comfortable Macclesfield suburb. Set on a decent plot with a good-sized private rear garden, garage and driveway, the house is freehold, chain-free and ready to move into — ideal for buyers seeking straightforward occupancy and outdoor space for children or pets.
Accommodation includes a through lounge with French doors onto the garden, a dining kitchen with direct access to the garage, and three first-floor bedrooms (two doubles and one single). The family bathroom has a shower-over-bath, and useful storage includes an airing cupboard and under-stairs cupboard. Double glazing and mains gas central heating are in place.
The property sits in a very affluent, low-crime area with fast broadband and excellent mobile signal. Several well-rated primary and secondary schools are nearby, including Good and Outstanding options, making this a sensible choice for families prioritising schooling and local amenities.
Notable points to consider: the kitchen is dated and small and other areas show 1960s styling — some buyers may want cosmetic updating or modernisation. At about 955 sq ft, the home is average-sized so it suits typical family needs rather than those seeking large, extended living space. Overall, the house offers immediate livability with straightforward potential to refresh and personalise over time.
3 bedroom semi-detached house for sale in Newlyn Avenue, Macclesfield, SK10 — £295,000 • 3 bed • 1 bath • 771 ft²
3 bedroom semi-detached house for sale in Kenilworth Road, Macclesfield, SK11 — £280,000 • 3 bed • 1 bath • 1000 ft²
3 bedroom semi-detached house for sale in Kenilworth Road, Macclesfield, Cheshire, SK11 — £375,000 • 3 bed • 1 bath • 1377 ft²
3 bedroom semi-detached house for sale in Kenilworth Road, Macclesfield, Cheshire, SK11 — £350,000 • 3 bed • 1 bath • 1182 ft²
3 bedroom semi-detached house for sale in 86 Tytherington Drive, SK10 — £289,950 • 3 bed • 1 bath • 819 ft²
3 bedroom detached house for sale in Birches Croft Drive, Macclesfield, SK10 — £365,000 • 3 bed • 1 bath • 828 ft²






















































