Quiet village living with modern interiors and generous outdoor space.
Three double bedrooms, including principal ensuite
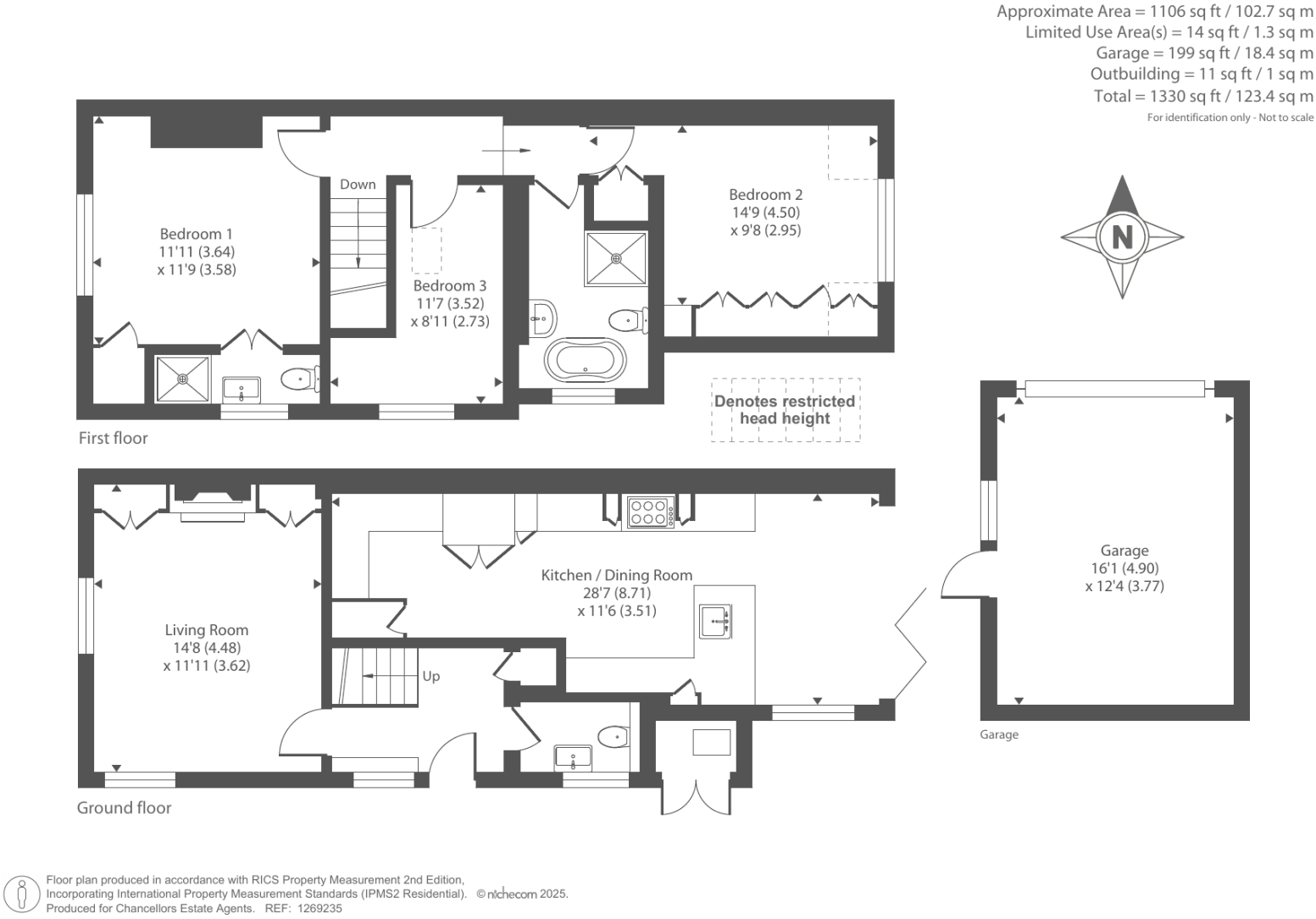
Set in the peaceful village of White Waltham, this three-bedroom semi-detached cottage blends Tudor Revival character with recent modernisation. The living space is arranged over two floors and extends to about 1,316 sq ft, with an open-plan kitchen/diner and a separate family bathroom plus an ensuite to the principal bedroom. A gated driveway, single garage and a large garden complete the plot, offering practical outdoor space and secure parking.
The property has been newly renovated and presents clean, contemporary finishes in the kitchen and living spaces while retaining original brickwork, gables and a period feel. It suits families seeking good local schools and countryside living, with Maidenhead and its commuter links around 4.2 miles away. There is no flood risk and the neighbourhood is low-crime and affluent.
Buyers should note a few material considerations. The house has solid brick walls with no built-in insulation (assumed) and secondary glazing rather than full double glazing, so further insulation work could improve comfort and running costs. Main heating is electric storage heaters, although an air source heating system is also listed as an environmental feature which can lower fossil-fuel use. Council tax is above average for the area.
Overall, this cottage offers character, modernised living areas and a sizable plot in a well-regarded village. It is a straightforward purchase for those willing to invest in targeted energy upgrades to maximise long-term comfort and efficiency.
3 bedroom semi-detached house for sale in Kiln Hill, White Waltham, Maidenhead, SL6 — £775,000 • 3 bed • 2 bath • 1110 ft²
3 bedroom semi-detached house for sale in Newell Green, Warfield, Bracknell, Berkshire, RG42 — £695,000 • 3 bed • 2 bath • 1300 ft²
3 bedroom semi-detached house for sale in Brock Hill, Winkfield, Bracknell, RG42 — £675,000 • 3 bed • 2 bath • 1241 ft²
3 bedroom semi-detached house for sale in Hatchet Lane, Winkfield, Windsor, Berkshire, SL4 — £665,000 • 3 bed • 1 bath • 1112 ft²
4 bedroom detached house for sale in Waltham Road, Maidenhead, Berkshire, SL6 — £1,300,000 • 4 bed • 3 bath • 2596 ft²
2 bedroom cottage for sale in Fifield Road, Bray, Maidenhead, SL6 — £440,000 • 2 bed • 1 bath • 521 ft²






































































































































