Spacious, light-filled one-bedroom penthouse close to Mill Hill Broadway station..
Top-floor penthouse with large feature windows and open-plan living
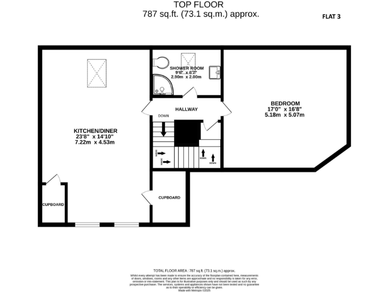
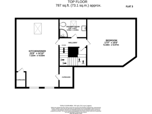
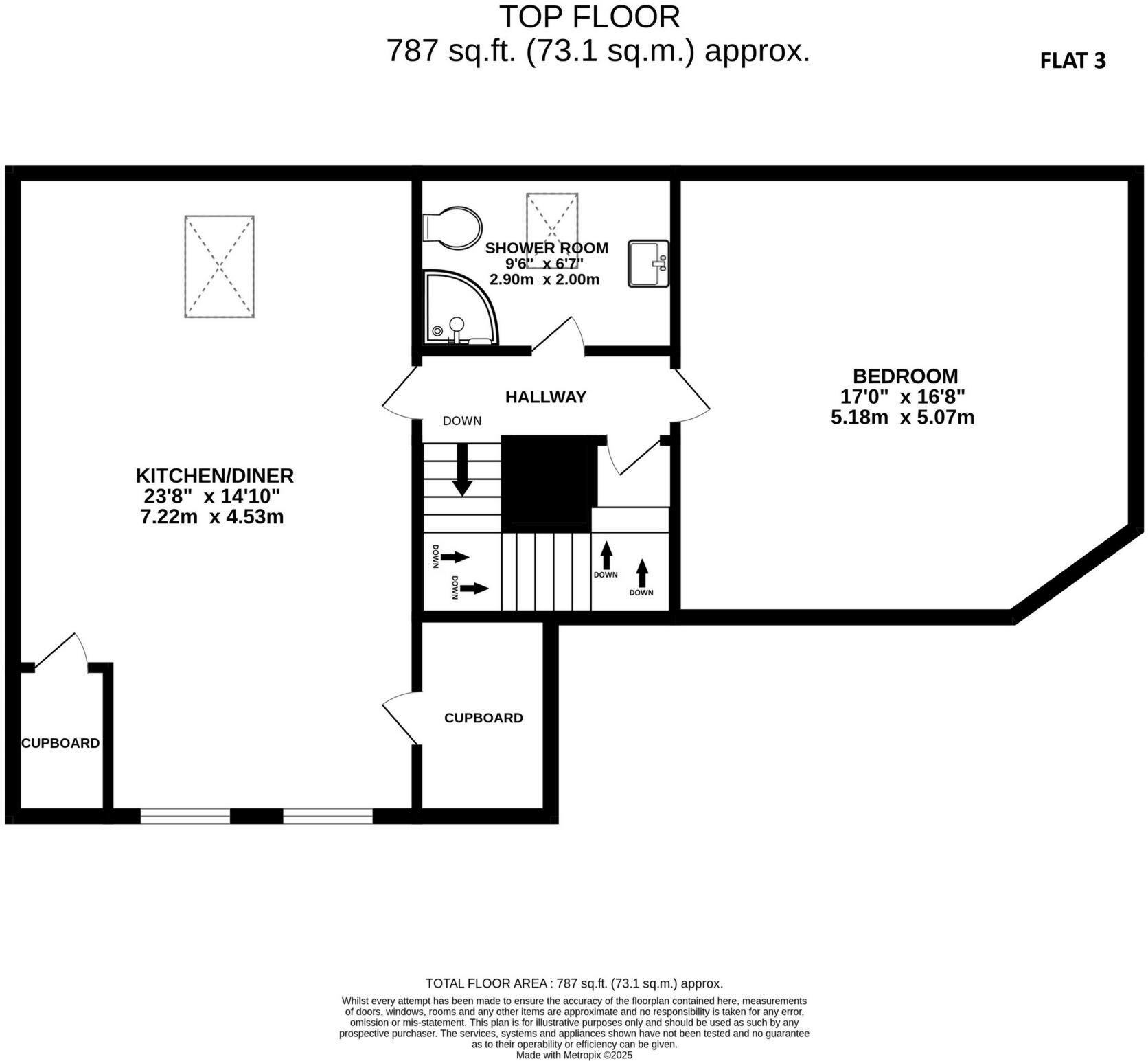
This top-floor penthouse in Mill Hill sits within a new development and offers a bright, contemporary one-bedroom home finished to a high standard. The open-plan living and dining area is filled with light from large feature windows, and the sleek fitted kitchen includes integrated appliances and premium surfaces. At roughly 73 sqm (786 sq ft), the apartment feels spacious for a one-bedroom and benefits from premium flooring and fitted lighting throughout.
The double bedroom provides a quiet retreat and the modern bathroom uses quality fixtures and contemporary finishes. Being a newly renovated new-build, the property requires little immediate upkeep and comes with fast broadband, excellent mobile signal and low local crime — practical advantages for first-time buyers, downsizers or investors.
Location is a key strength: the penthouse is a short walk from Mill Hill Broadway Thameslink station and the local shops, cafés and amenities, with green spaces and schools nearby. The surrounding area is an urban cultural mix within a generally affluent neighbourhood, offering a diverse local community and straightforward access to central London.
A few points to note: this is a one-bedroom penthouse, so it may not suit families seeking multiple bedrooms. Tenure is share of freehold; buyers should check specific terms and any service charges or management arrangements. As a top-floor apartment, access is likely by stairs or lift—confirm mobility needs and communal maintenance responsibilities before committing.
1 bedroom penthouse for sale in Hale Grove Gardens, London, NW7 — £595,000 • 1 bed • 1 bath • 787 ft²
3 bedroom apartment for sale in Mill Hill Place, NW7 — £1,195,000 • 3 bed • 2 bath • 15710 ft²
2 bedroom penthouse for sale in Peacock Close, Mill Hill, NW7 — £489,950 • 2 bed • 2 bath • 900 ft²
2 bedroom penthouse for sale in Henry Darlot Drive, London, NW7 — £899,995 • 2 bed • 2 bath • 1583 ft²
3 bedroom flat for sale in Henry Darlot Drive, Mill Hill, NW7 — £1,250,000 • 3 bed • 2 bath • 2185 ft²
2 bedroom apartment for sale in Henry Darlot Drive, Mill Hill, NW7 — £1,000,000 • 2 bed • 2 bath • 1609 ft²














































































