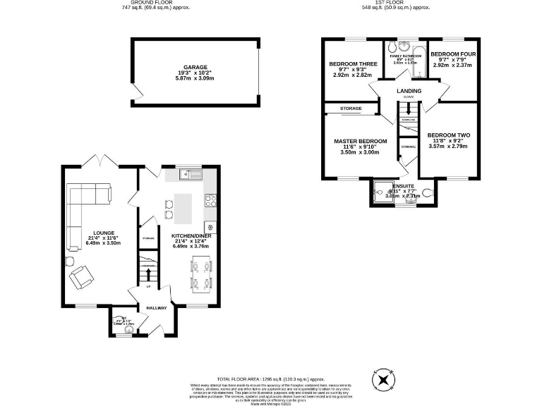
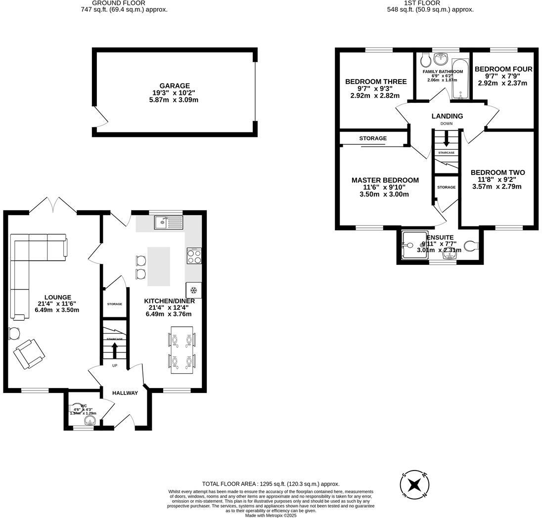
**Standout Features:**
- Four spacious bedrooms with the master featuring an en-suite
- Generously sized, inviting lounge with dual-aspect natural light
- Open-plan kitchen/diner with modern appliances and central island
- Secluded front garden and expansive rear garden with patio and decking
- Detached garage and off-road parking with EV charging point
- Close proximity to local amenities and excellent travel links
- EPC Rating: C
This beautifully presented four-bedroom detached home is perfectly tailored for family living, offering approximately 1,295 sq. ft. of comfortable space to grow and thrive. Located in the desirable village of Clayton-Le-Woods, this home combines suburban charm with modern conveniences just a short drive from Chorley town center. The bright entrance hallway leads into a spacious lounge filled with natural light, while the stylish open-plan kitchen/diner features integrated appliances and connects seamlessly to the tranquil garden through patio doors.
Upstairs, the master suite includes an en-suite shower for added convenience, complemented by three additional bedrooms and a contemporary family bathroom. Outside, revel in the privacy of a gated front garden and a sizeable backyard perfect for entertaining, equipped with a raised decking area, apple tree, and a detached garage. Off-road parking is available for two vehicles, with an added bonus of an EV charging point.
Given the excellent transport links and proximity to schools, parks, and amenities, this property is an exceptional opportunity for families seeking both comfort and convenience. With rising interest in the area, early viewing is highly recommended to secure this inviting family haven!
4 bedroom detached house for sale in Ashdown Drive, Clayton-Le-Woods, Chorley, PR6 — £279,995 • 4 bed • 2 bath • 1168 ft²
4 bedroom detached house for sale in Copperfield Vale, Clayton-Le-Woods, Chorley, PR6 — £274,995 • 4 bed • 2 bath • 1319 ft²
4 bedroom detached house for sale in Forsythia Drive, Clayton-Le-Woods, Chorley, PR6 — £324,995 • 4 bed • 2 bath • 1475 ft²
3 bedroom detached house for sale in Sherwood Avenue, Leyland, PR25 — £330,000 • 3 bed • 2 bath • 1188 ft²
3 bedroom detached house for sale in Wentwood Crescent, Clayton-Le-Woods, PR25 — £330,000 • 3 bed • 2 bath • 1372 ft²
4 bedroom detached house for sale in Whittle Park, Clayton-le-Woods, Chorley, Lancashire, PR6 — £420,000 • 4 bed • 2 bath • 1500 ft²


























































































