Low-maintenance two-bedroom home with off-street parking and south garden.
End-of-cul-de-sac position with very low local crime
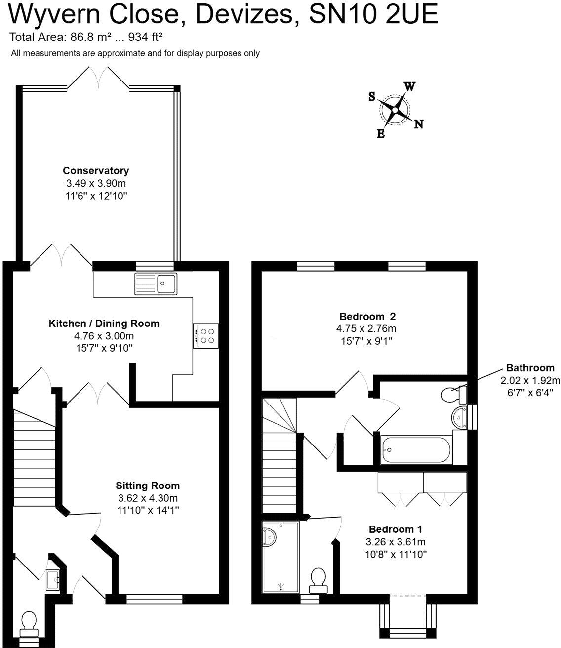
Quietly tucked at the end of a residential close, this two-bedroom end terrace offers practical, low-maintenance living with no onward chain. The ground floor features a sitting room, kitchen/diner and a light conservatory that opens onto a south-facing, fully paved garden — an easy-care outdoor space for summer dining and pot plants. Two allocated parking spaces sit directly in front of the house for convenient off-street parking.
Upstairs provides two double bedrooms, one with an en-suite and the other bright with dual-aspect windows. The property was reconfigured from three bedrooms into a spacious two-bedroom layout, giving generous principal rooms and clear potential to alter the plan if three bedrooms are required. Gas central heating is efficient and the boiler was replaced around four years ago; the home benefits from double glazing and an Energy Efficiency rating of C.
Practical buyers will value the small, manageable plot and the low-running costs suggested by council tax band C and very low local crime. The location suits first-time buyers, small families or downsizers seeking a suburban setting near amenities: good local schools, canal-side walks and nearby shops are all within easy reach. A virtual tour is available to inspect the internal layout before visiting.
Considerations: the rear garden is fully paved and small in size, so it’s low maintenance but not suitable for large-scale planting or play. The property’s conversion from three to two bedrooms means those wanting three bedrooms would need to plan reconfiguration. Overall, this is a tidy, well-located home that offers straightforward, move-in-ready accommodation with modest outside space.
2 bedroom terraced house for sale in Phillip Close, Devizes, SN10 — £240,000 • 2 bed • 1 bath • 593 ft²
3 bedroom terraced house for sale in Beechwood Close, Devizes, Wiltshire, SN10 — £265,000 • 3 bed • 1 bath • 960 ft²
3 bedroom terraced house for sale in Marina Close, Devizes, SN10 — £280,000 • 3 bed • 1 bath • 880 ft²
2 bedroom terraced house for sale in White Horse Way, Devizes, SN10 — £230,000 • 2 bed • 1 bath • 603 ft²
3 bedroom end of terrace house for sale in Freeman Road, Devizes, Wiltshire, SN10 — £270,000 • 3 bed • 1 bath • 962 ft²
2 bedroom semi-detached house for sale in West View Crescent, Devizes, SN10 — £260,000 • 2 bed • 1 bath • 862 ft²










































































