Spacious family living with studio and large parking area.
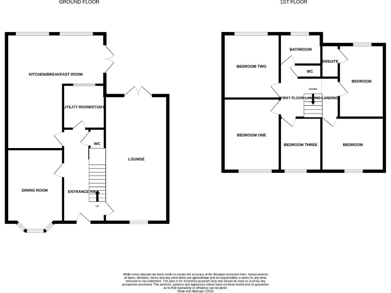
Extended five-bedroom semi-detached family home
This extended five-bedroom semi-detached home on Denton Road offers generous family living across two floors, thoughtfully renovated to a high standard. The ground floor features a bright lounge, separate dining room, a modern kitchen/breakfast space with island, utility/study and cloakroom — flexible layouts suit family life and home-working. Upstairs are five well-proportioned bedrooms, one with an en-suite, plus a family bathroom and additional cloakroom.
Outside the property benefits from a substantial brick/block paved driveway providing ample off-street parking and a low-maintenance rear garden with a useful double-glazed studio ideal for a home office, gym or hobby space. Practical extras include mains gas central heating, double glazing and fast broadband availability for modern living.
Buyers should note some legacy building details: the external walls are cavity construction with no installed insulation assumed, and the double glazing was installed before 2002 — both factors to consider for long-term running costs and potential upgrade work. The property is freehold, in Tax Band C, and sits in a generally low-crime, affluent area with good local schools and transport links.
Overall this house will suit growing families seeking spacious, move-in-ready accommodation with parking and a versatile external studio, while buyers wanting the highest energy performance should factor in potential insulation or window upgrades.
5 bedroom detached house for sale in Branksome Road, Norwich, NR4 — £1,250,000 • 5 bed • 2 bath • 2138 ft²
3 bedroom detached house for sale in Plumstead Road, Norwich, NR1 — £375,000 • 3 bed • 2 bath • 937 ft²
3 bedroom semi-detached house for sale in Earlham Road, NORWICH, NR4 — £300,000 • 3 bed • 1 bath • 969 ft²
5 bedroom semi-detached house for sale in Three Mile Lane, Norwich, NR5 — £400,000 • 5 bed • 2 bath • 1828 ft²
5 bedroom detached house for sale in Earlham Road, Norwich, NR4 — £575,000 • 5 bed • 4 bath • 2301 ft²
3 bedroom semi-detached house for sale in Richmond Road, Norwich, Norfolk, NR5 — £350,000 • 3 bed • 2 bath • 1023 ft²






































































































































