Chain-free four-bedroom home near park and station ideal for growing families.
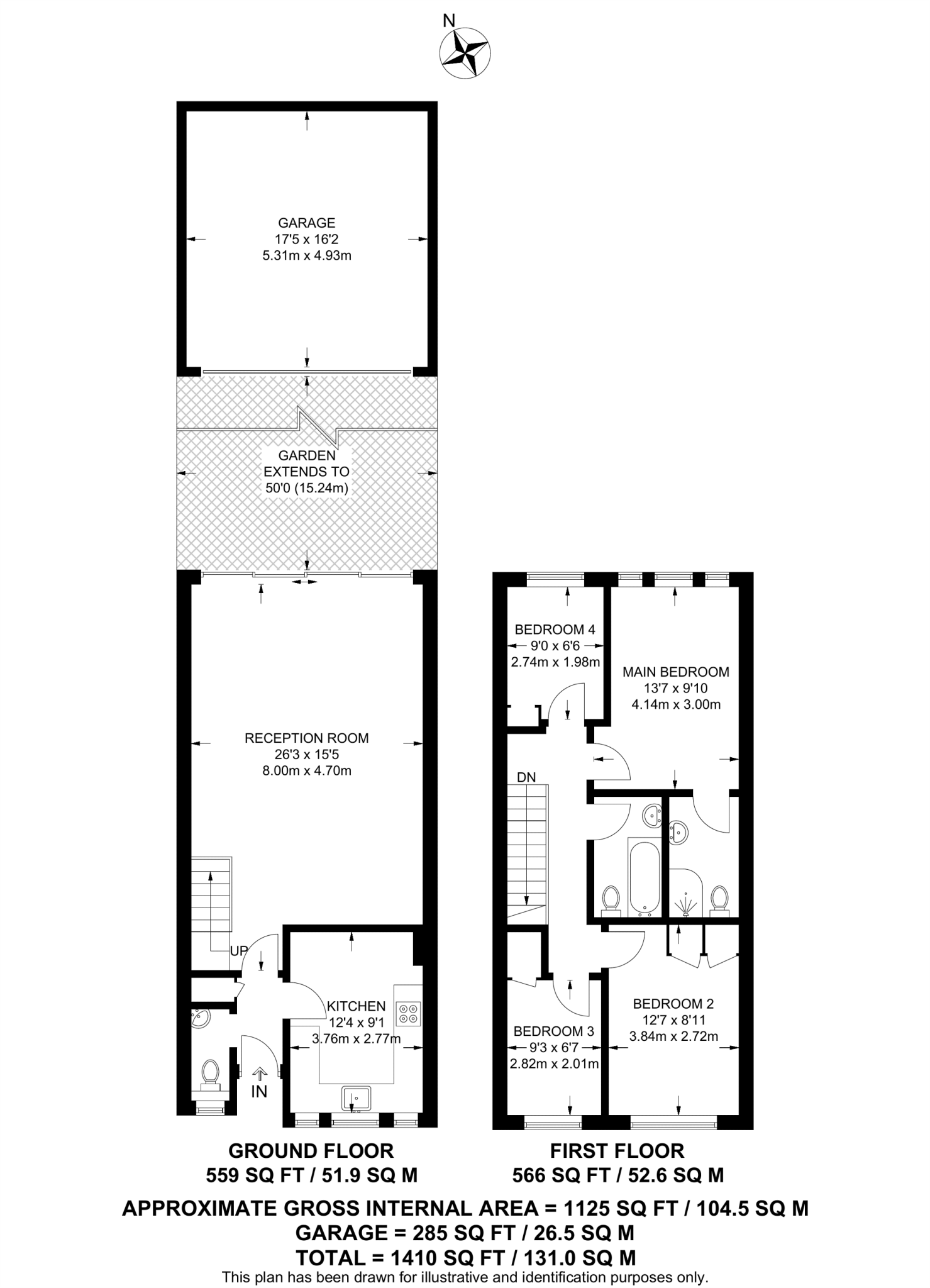
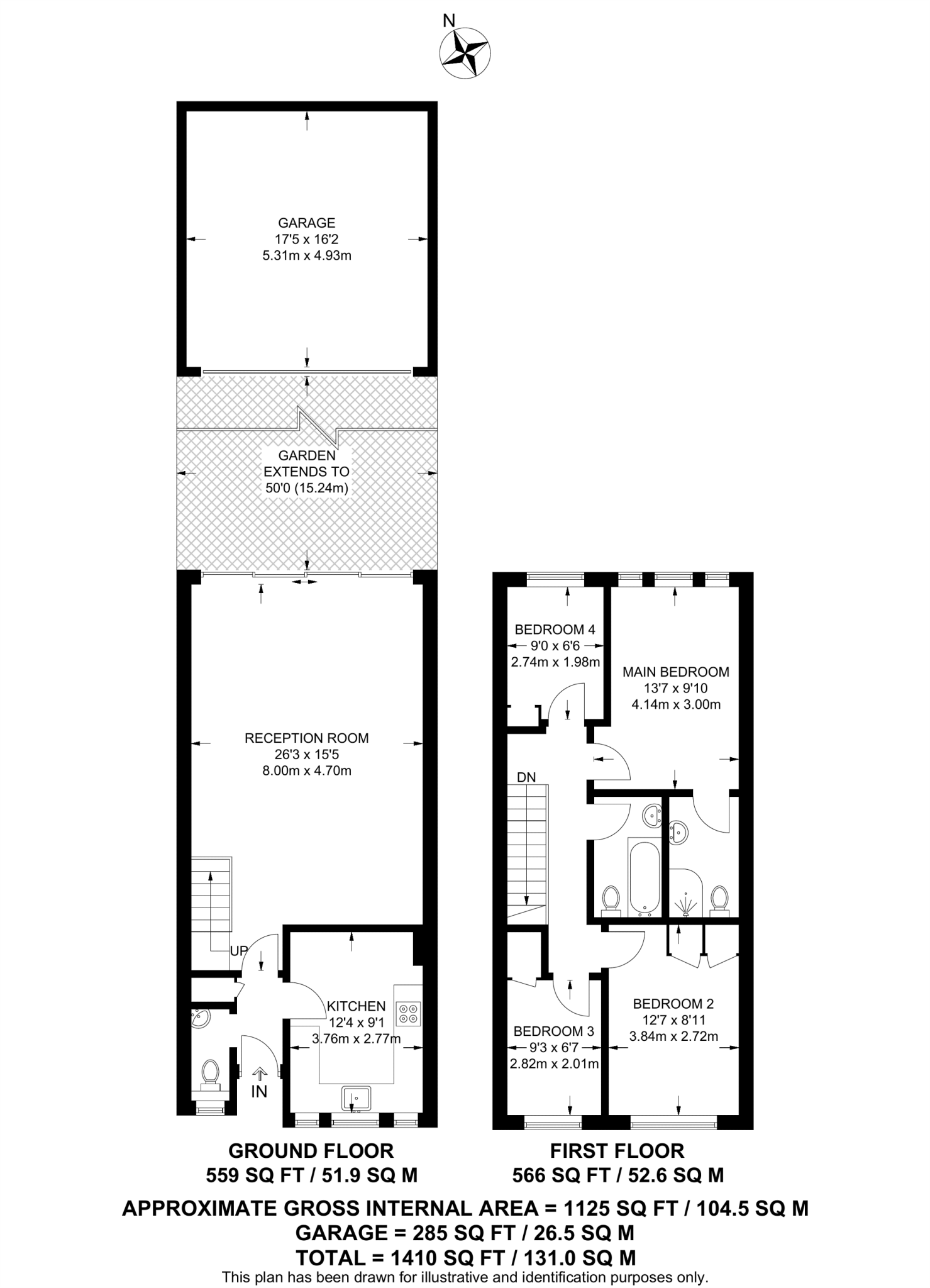
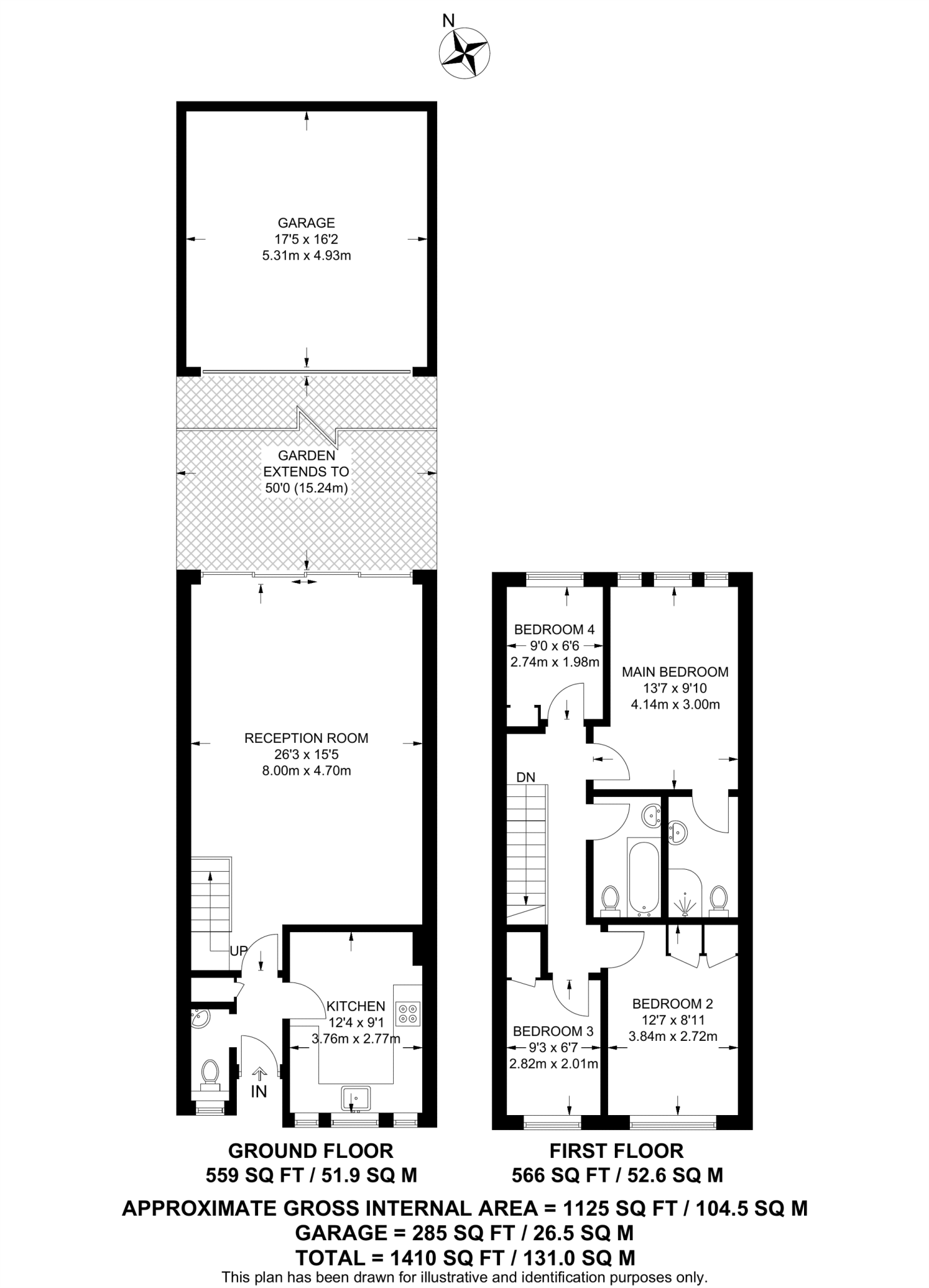
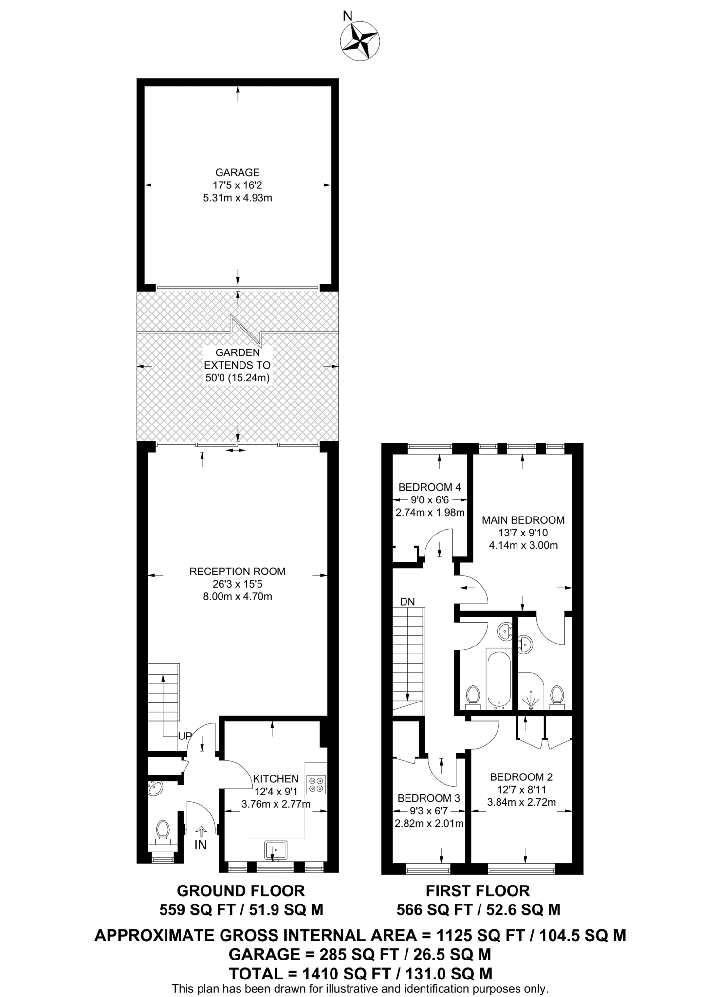
- Four bedrooms and two bathrooms, including main en-suite
- Bright lounge/diner plus separate modern kitchen with appliances
- Private rear garden and garage; decent plot size
- Chain free sale; freehold tenure
- Within walking distance of Ravensbourne station and park
- Built 1950s–66 timber frame; partial insulation assumed
- Very slow broadband; may not suit heavy home-working needs
- Medium flood risk and some external maintenance needed
This well-proportioned mid-terraced house offers practical family living close to Beckenham Place Park and Ravensbourne station. The layout provides a bright lounge/diner, separate modern kitchen with appliances, four good-sized bedrooms and two bathrooms, including a main bedroom with built-in storage and an en-suite. A private rear garden and garage complete the outside space.
The house is offered chain free, making it easier to move quickly. Its size (around 1,410 sq ft) and traditional layout suit families or commuters seeking straightforward, roomy accommodation within a very affluent area. Local schooling includes highly rated primary and secondary options within easy reach.
Buyers should note a few material facts: the property dates from the 1950s–1960s with a timber-frame structure and only partial insulation assumed, so further insulation or energy upgrades may be required. Broadband speeds are reported as very slow. There is a medium flooding risk and the exterior images indicate some maintenance will be needed to the façade and roofline. The home benefits from double glazing installed since 2002 and gas central heating via boiler and radiators.
Overall this terraced house represents a family-friendly, commuter-focused home with immediate move-in potential but some upgrade and maintenance tasks to consider, particularly around insulation, external upkeep and connectivity.
3 bedroom house for sale in Erin Close, Bromley, BR1 — £500,000 • 3 bed • 1 bath • 915 ft²
4 bedroom detached house for sale in Downs Hill, Beckenham, BR3 — £1,100,000 • 4 bed • 3 bath • 1811 ft²
3 bedroom terraced house for sale in Ravenscroft Road, Beckenham, BR3 — £650,000 • 3 bed • 1 bath • 925 ft²
3 bedroom house for sale in Coniston Road, Bromley, BR1 — £550,000 • 3 bed • 2 bath • 1036 ft²
4 bedroom terraced house for sale in Beck River Park, Beckenham, BR3 — £700,000 • 4 bed • 2 bath • 1509 ft²
3 bedroom terraced house for sale in Abbey Park, Brackley Road, Beckenham, BR3 — £600,000 • 3 bed • 1 bath • 1038 ft²


















































































































































































































































































































































































































































































