**Standout Features:**
- Newly refurbished two-bedroom maisonette
- Private garden perfect for outdoor relaxation
- Off-street parking for convenience
- Located within walking distance to Weybridge town and mainline station
- Situated in sought-after school catchments with excellent education options
- Leasehold with 114 years remaining; Ground rent is a manageable £250/year with no maintenance charges
**Summary:**
This stunning two-bedroom first floor maisonette is a hidden gem in Weybridge, combining modern elegance with everyday practicality. Recently refurbished, it features a contemporary kitchen and a stylish bathroom, creating a comfortable living space. The inviting private garden offers a tranquil retreat, while the off-street parking adds to the property's convenience. Located on a private road, you’ll enjoy a serene environment just a short stroll from vibrant Weybridge town and the mainline station.
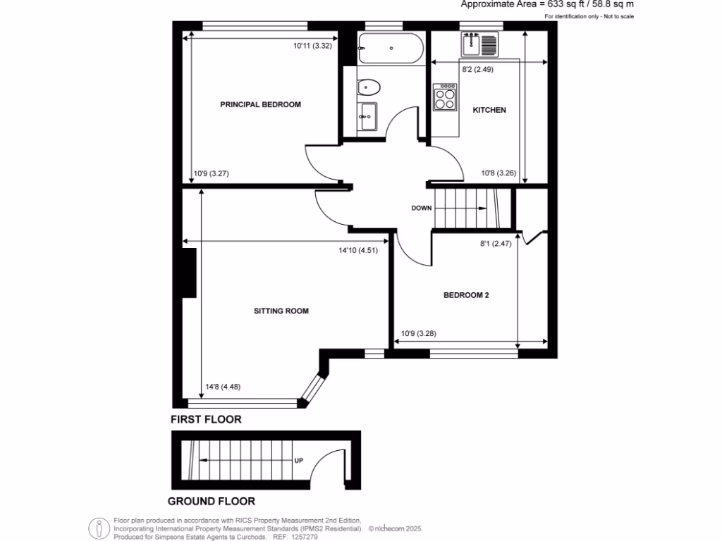
Ideal for families, this home falls within excellent school catchments, including several rated as 'Good' by Ofsted. With a total area of 633 square feet, it offers average-sized accommodation in a desirable, affluent neighborhood. Despite needing double glazing confirmation and potential insulation upgrades, the property is well-maintained and provides a great opportunity for buyers looking for a quality home in a flourishing community.
Don’t miss out on this exclusive offering—properties in such a prime location with extensive amenities and great transport links rarely stay on the market for long!
2 bedroom flat for sale in Arlington Lodge, Monument Hill, Weybridge, KT13 — £350,000 • 2 bed • 1 bath • 754 ft²
2 bedroom maisonette for sale in Layton Court, Weybridge, KT13 — £389,950 • 2 bed • 1 bath • 664 ft²
2 bedroom maisonette for sale in Caenwood Close, Weybridge, KT13 — £400,000 • 2 bed • 1 bath • 899 ft²
2 bedroom apartment for sale in St Marys Road, WEYBRIDGE, KT13 — £350,000 • 2 bed • 1 bath • 669 ft²
2 bedroom maisonette for sale in Arlington Lodge, Monument Hill, Weybridge, Surrey, KT13 — £325,000 • 2 bed • 1 bath • 651 ft²
2 bedroom apartment for sale in Elgin Road, WEYBRIDGE, KT13 — £350,000 • 2 bed • 1 bath • 628 ft²






















































































