Generous garden and commuter-friendly location ideal for growing families.
Large 0.15-acre plot with approximately 160' south-west facing rear garden
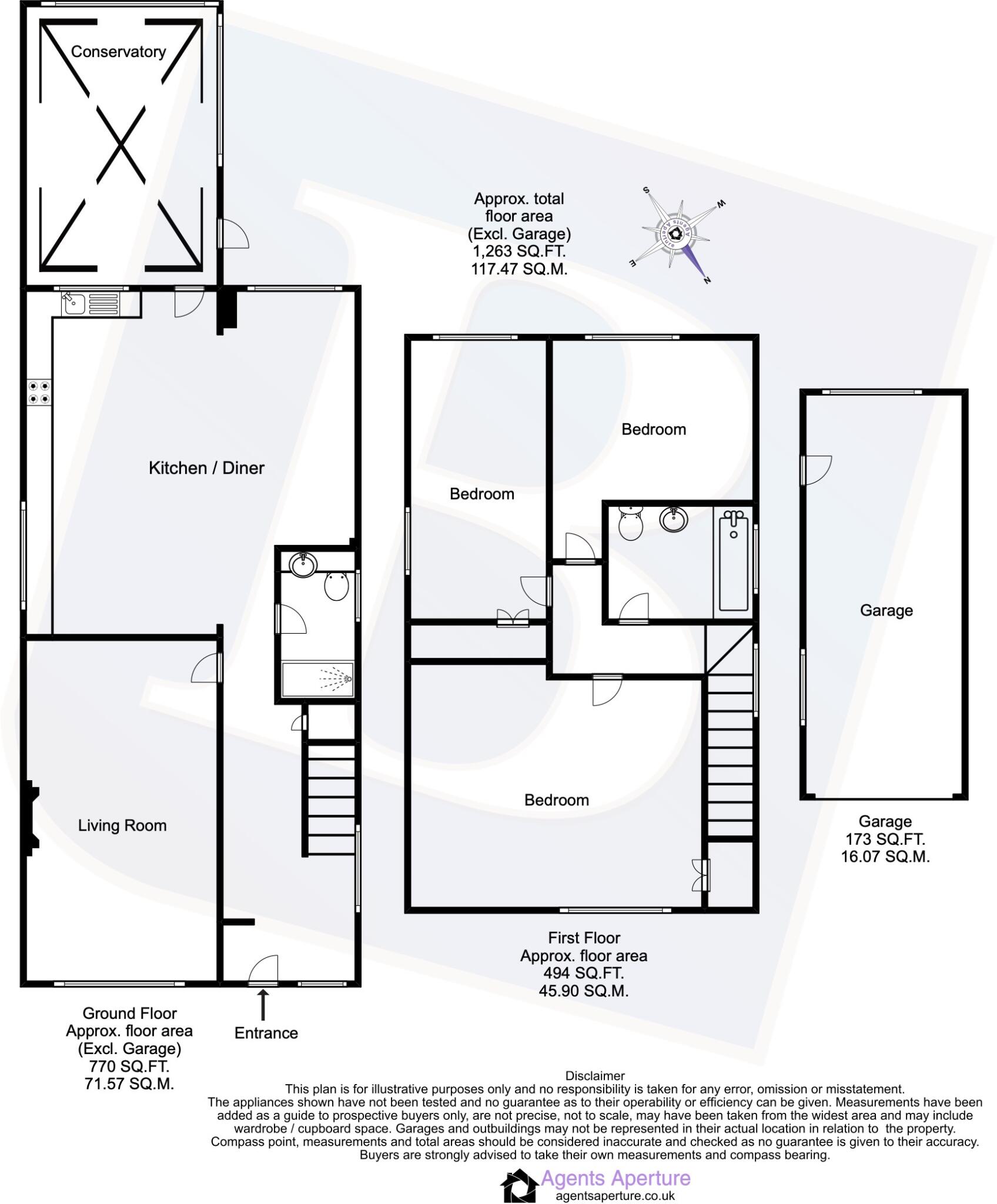
Three bedrooms, open-plan kitchen/diner and large conservatory
Detached garage plus single-vehicle driveway parking
Chain free sale, freehold tenure, approx. 1,263 sq ft of living space
Built 1996–2002 with double glazing and mains gas central heating
Walking distance to mainline railway station and Good-rated primary schools
Council tax band E (above average)
Local crime levels are above average — consider security and insurance
This well-presented three-bedroom detached home sits on a generous 0.15-acre plot with a 160' approx. south-west facing rear garden, offering good outdoor space for family life and entertaining. Internally the house provides around 1,263 sq ft of accommodation, including an open-plan kitchen/diner, a spacious living room and a large conservatory that brings extra light and versatility.
The property is practical and modern in feel, built around 1996–2002 and fitted with double glazing and mains gas central heating. Its location is convenient for commuters, within walking distance of the mainline railway station, and local primary schools rated Good are nearby, making morning routines straightforward for families.
Buyers should note a few material facts: the driveway only accommodates a single vehicle, council tax is band E (above average) and local crime levels are above average. The house is offered freehold and chain free, so completion can be straightforward for buyers seeking a quicker move.
Overall this detached home will suit a family wanting a roomy garden, convenient transport links and a modern, comfortable layout, while being realistic about parking limits and ongoing local area considerations.
3 bedroom detached house for sale in Broad Oaks, Wickford, Essex, SS12 — £450,000 • 3 bed • 2 bath • 1280 ft²
4 bedroom detached house for sale in Coppens Green, Wickford, Essex, SS12 — £550,000 • 4 bed • 2 bath • 1273 ft²
2 bedroom semi-detached house for sale in Langenhoe, Wickford, Essex, SS12 — £350,000 • 2 bed • 1 bath • 706 ft²
3 bedroom semi-detached house for sale in Lynfords Drive, Runwell, Wickford, Essex, SS11 — £475,000 • 3 bed • 2 bath • 1316 ft²
4 bedroom semi-detached house for sale in Beauchamps Drive, Wickford, Essex, SS11 — £450,000 • 4 bed • 2 bath • 1172 ft²
4 bedroom detached house for sale in Silver Way, Wickford, Essex, SS11 — £500,000 • 4 bed • 2 bath • 1619 ft²


















































































