Private garden, tandem parking and warranties for stress-free ownership.
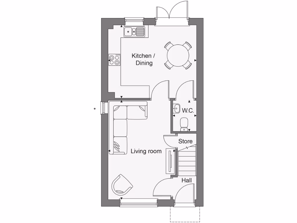
Open-plan kitchen/diner with French doors to turfed private rear garden
Two double bedrooms and family bathroom on first floor
Two tandem off-street parking spaces to the front
Estimated move-in January–March 2026 (new-build timetable)
10-year Premier warranty plus 2-year builder warranty included
Freehold tenure; Council Tax band TBC
New development — dimensions and specifications may vary; images illustrative
Located in a small-town fringe with fast broadband and low crime
Built for easy modern living, this two-bedroom end-terrace offers an open-plan kitchen/diner with French doors to a private turfed garden. The ground floor includes useful understairs storage and a cloakroom; upstairs are two double bedrooms and a family bathroom. Two tandem driveway spaces sit to the front for off-street parking.
As a new-build with an estimated move-in of January–March 2026, the home comes with a 10-year Premier warranty and a 2-year warranty from a 5* HBF house builder, giving long-term reassurance. The property is freehold and positioned in a small-town, town-fringe setting with fast broadband and low local crime.
Buyers should note this is a new development: some dimensions, specifications and details may change and images can be illustrative. Council Tax band is not yet confirmed. The layout and tandem parking suit couples, first-time buyers or downsizers wanting low-maintenance outside space and contemporary finishes.
2 bedroom end of terrace house for sale in Station Road,
Little Dunmow,
Essex,
CM6 3HW, CM6 — £350,000 • 2 bed • 1 bath
2 bedroom semi-detached house for sale in Station Road,
Little Dunmow,
Essex,
CM6 3HW, CM6 — £385,000 • 2 bed • 1 bath
2 bedroom semi-detached house for sale in Stortford Road,
Dunmow,
CM6 1SG, CM6 — £385,000 • 2 bed • 1 bath
5 bedroom detached house for sale in Stortford Road,
Dunmow,
CM6 1SG, CM6 — £760,000 • 5 bed • 1 bath
2 bedroom bungalow for sale in Station Road,
Little Dunmow,
Essex,
CM6 3HW, CM6 — £425,000 • 2 bed • 1 bath
2 bedroom semi-detached house for sale in Parsonage Road,
Takeley,
CM22 6PU, CM22 — £375,000 • 2 bed • 1 bath


































