Spacious, secure detached house with pool and private parking near Hampstead Heath.
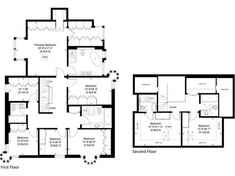
- Substantial detached house: c.6,160 sq ft across four floors
- Eight bedrooms and seven bathrooms, ideal for large families
- Indoor pool, bar/leisure area, gym and sauna (requires maintenance)
- Mark Wilkinson bespoke kitchen; oak fittings and high ceilings
- Large walled courtyard gardens plus gated forecourt parking
- Freehold in protected Hampstead Village Conservation Area
- Moments from Hampstead Heath and local schools (including outstanding)
- Council Tax Band H — very expensive to run
A rare, double-fronted detached house occupying a prominent, secure island site at the summit of Old Hampstead Village, moments from Hampstead Heath. Built 2003 and in the same ownership since completion, the property extends to approximately 6,160 sq ft across four floors with wide sash and oriel windows that flood the interior with light and offer southerly views towards Christ Church.
Designed for large-family living and entertaining, the house offers eight bedrooms, seven bathrooms and four principal reception rooms, alongside a Mark Wilkinson bespoke kitchen, oak fittings throughout and high ceilings. Extensive leisure accommodation includes an indoor swimming pool with adjoining bar/leisure area, a fully equipped gym, sauna and changing room — substantial assets but also systems that will require ongoing maintenance.
Externally the house is surrounded on three sides by connected walled courtyard gardens and a large forecourt with secure gated parking for several cars. The freehold position within a protected Conservation Area places this property within easy walking distance of Hampstead High Street’s shops, restaurants and the Underground, and immediate access to Hampstead Heath.
Practical points to note: the house sits in Council Tax band H (very expensive) and the scale and specialist fittings (pool, gym, bespoke joinery) mean running and upkeep costs will be material. The property is well suited to an established family seeking space, privacy and close access to top local schools and amenities.
7 bedroom detached house for sale in Heath Drive, Hampstead, NW3 — £12,500,000 • 7 bed • 5 bath • 7529 ft²
5 bedroom detached house for sale in Denning Road, Hampstead, London, NW3 — £6,500,000 • 5 bed • 3 bath • 4063 ft²
6 bedroom detached house for sale in Denning Road, London, NW3 — £9,500,000 • 6 bed • 7 bath • 7922 ft²
7 bedroom detached house for sale in Heath Drive, London, NW3 — £12,500,000 • 7 bed • 5 bath • 7529 ft²
7 bedroom house for sale in Heath Drive, Hampstead, NW3 — £16,500,000 • 7 bed • 6 bath • 9327 ft²
8 bedroom detached house for sale in Hampstead Lane, London, N6 — £18,950,000 • 8 bed • 9 bath • 13670 ft²














































































