Comfortable three-bedroom near river walks and award-winning beaches for family living.
Edwardian semi-detached with period character features
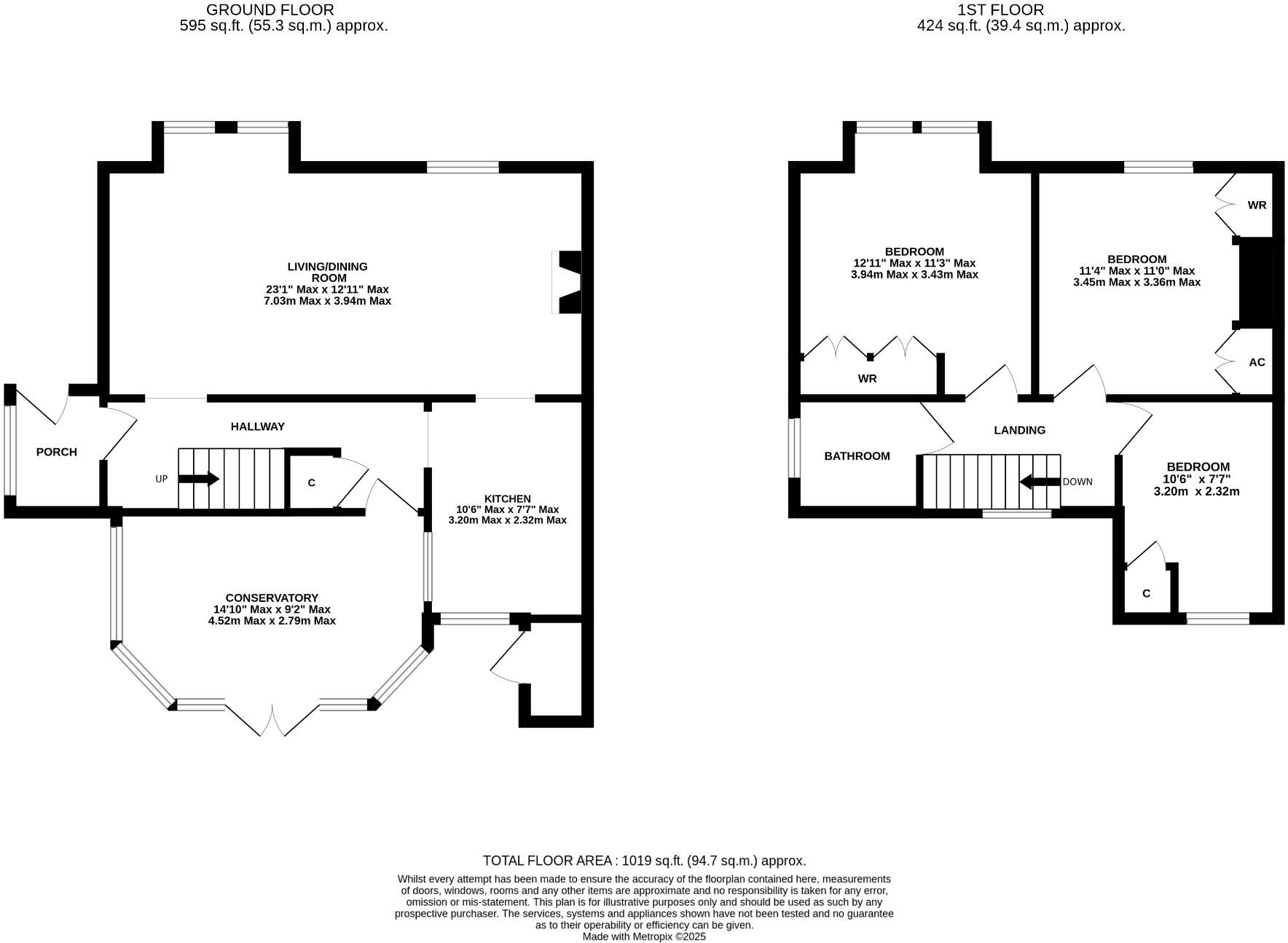
This three-bedroom semi-detached Edwardian home sits in a quiet, sought-after pocket of Bournemouth moments from Wick Village and the River Stour. The ground floor offers an open-plan living/dining room with a box bay and an adjoining modern kitchen, while a conservatory opens onto a sunny, low-maintenance rear patio—ideal for relaxed family living and casual entertaining.
Upstairs are two generously proportioned double bedrooms with fitted storage, a third bedroom currently suitable as a single or small double, and a family bathroom with a shower-over-bath. The property benefits from gas central heating, double glazing and a modern boiler housed in a cupboard off the third bedroom. Driveway parking to the front adds practical convenience.
Practical facts you should know: the house is offered with no forward chain, is freehold and in Council Tax Band C. The plot is modest in size, and the EPC is rated D. There is visible chimney and past reports mention potential damp in places, so buyers should factor in standard maintenance and a targeted inspection where needed.
This home will suit growing families seeking proximity to beaches, good local schools and transport links, or buyers looking to buy in a very affluent, well-served suburb with scope to personalise and modernise further.
3 bedroom semi-detached house for sale in Edgehill Road, Bournemouth, BH9 — £385,000 • 3 bed • 2 bath • 1164 ft²
6 bedroom detached house for sale in Bryanstone Road, Bournemouth, BH3 — £685,000 • 6 bed • 2 bath • 2387 ft²
3 bedroom semi-detached house for sale in Vale Road, Lower Parkstone, Poole, Dorset, BH14 — £410,000 • 3 bed • 1 bath • 1144 ft²
3 bedroom detached house for sale in Tuckton Road, Tuckton, Bournemouth, Dorset, BH6 — £585,000 • 3 bed • 1 bath • 1242 ft²
3 bedroom semi-detached house for sale in Roberts Road, Bournemouth, Dorset, BH7 — £300,000 • 3 bed • 1 bath • 926 ft²
3 bedroom semi-detached house for sale in Bournemouth, BH8 — £294,000 • 3 bed • 1 bath • 795 ft²






















































































