Spacious new-build with dual en-suites and garden access for growing families.
10-year NHBC warranty for new-build peace of mind
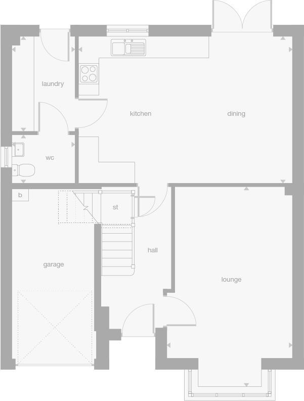
This new-build detached house sits on Thornly Park and comes with a 10-year NHBC warranty, a single garage and driveway. The layout suits family life: a generous open-plan kitchen/dining area with French doors to the garden, a separate lounge with a feature square bay window, and a handy laundry/utility room.
The principal bedroom and second bedroom both have en-suite showers, reducing morning congestion for larger households. Flexible ground-floor space can be used as a home office, playroom or study. Natural light and contemporary finishes are evident throughout, and solar panels feature on the roof, helping running costs.
Practical details include a low annual service charge of £86.50, a £500 reservation fee, freehold tenure and council tax band yet to be confirmed. The immediate neighbourhood is part of a managed development with landscaped public areas, but the wider area is recorded as having high levels of deprivation — buyers should check local services and transport links to ensure they meet family needs.
Overall this property offers modern family accommodation with useful warranties and parking. It’s well suited to buyers wanting move-in-ready, energy-conscious living, but factor in local-area considerations and the outstanding council tax details when deciding to view.
4 bedroom detached house for sale in Thornly Park, Caplethill Road, Paisley, PA2 7TR, PA2 — £407,000 • 4 bed • 1 bath
4 bedroom detached house for sale in Thornly Park, Caplethill Road, Paisley, PA2 7TR, PA2 — £337,000 • 4 bed • 1 bath • 2587 ft²
4 bedroom detached house for sale in Thornly Park, Caplethill Road, Paisley, PA2 7TR, PA2 — £402,000 • 4 bed • 1 bath
3 bedroom mews property for sale in Thornly Park, Caplethill Road, Paisley, PA2 7TR, PA2 — £289,000 • 3 bed • 1 bath
5 bedroom detached house for sale in Off Constarry Road,
Croy,
North Lanarkshire,
G65 9HY, G65 — £465,000 • 5 bed • 1 bath
3 bedroom semi-detached house for sale in Chapel Gardens,
Havoc Road,
Dumbarton,
West Dunbartonshire,
G82 4JH, G82 — £272,000 • 3 bed • 1 bath • 18248 ft²














































































