Contemporary high-floor living with private balcony and full communal facilities.
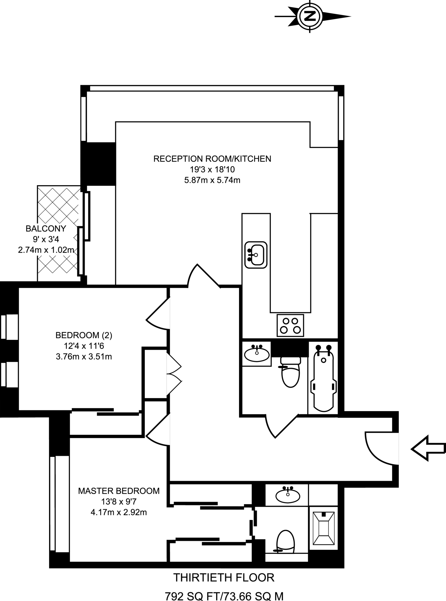
30th-floor apartment with expansive London views
Set on the 30th floor of a prestigious Canary Wharf development, this two-bedroom apartment delivers bright, contemporary living with expansive London views from floor-to-ceiling windows and a private balcony. The open-plan reception and modern kitchen suit city professionals seeking a low-maintenance home with resort-style onsite facilities.
Both bedrooms are doubles with built-in storage; the principal bedroom includes a luxury en suite. The compact kitchen is efficiently fitted with integrated appliances, while the living area feels larger thanks to high ceilings and generous glazing. Residents benefit from concierge service and communal amenities including a gym, pool and cinema.
Be aware of material running costs: the quoted service charge (£13,614 pa) and ground rent (£750 pa) are significant and will affect affordability. The building sits in an inner-city area with higher local crime statistics and pockets of deprivation nearby. The long lease (circa 980 years) and excellent connectivity (fast broadband, strong mobile signal) are practical advantages.
This property will suit buyers who prioritise location, views and facilities over a large footprint—ideal for professionals or first-time purchasers wanting turnkey, city-centre living. Investors should factor the high service charge into rental yield calculations.
2 bedroom flat for sale in Pan Peninsula, Canary Wharf, London, E14 — £525,000 • 2 bed • 2 bath • 808 ft²
2 bedroom flat for sale in Maine Tower, E14, Canary Wharf, London, E14 — £700,000 • 2 bed • 2 bath • 860 ft²
2 bedroom flat for sale in Pan Peninsula Square, Canary Wharf, London, E14 — £575,000 • 2 bed • 2 bath • 688 ft²
2 bedroom flat for sale in South Quay Plaza, E14, Canary Wharf, London, E14 — £870,000 • 2 bed • 2 bath • 984 ft²
1 bedroom flat for sale in Pan Peninsula, Canary Wharf, London, E14 — £435,000 • 1 bed • 1 bath • 495 ft²
2 bedroom flat for sale in Pan Peninsula, Willesden, London, E14 — £500,000 • 2 bed • 2 bath • 763 ft²






































































































































































