**Standout Features:**
- Newly built in 2024 by Sandway Homes
- Three spacious bedrooms with an en-suite in the master
- Open plan dining kitchen with integrated appliances
- Off-road parking and private garden ready for personal touch
- Excellent transport links and proximity to local amenities
- Freehold tenure
**Potential Concerns:**
- Above-average local crime rates
- Broadband speeds are very slow
- Area is classified as very deprived
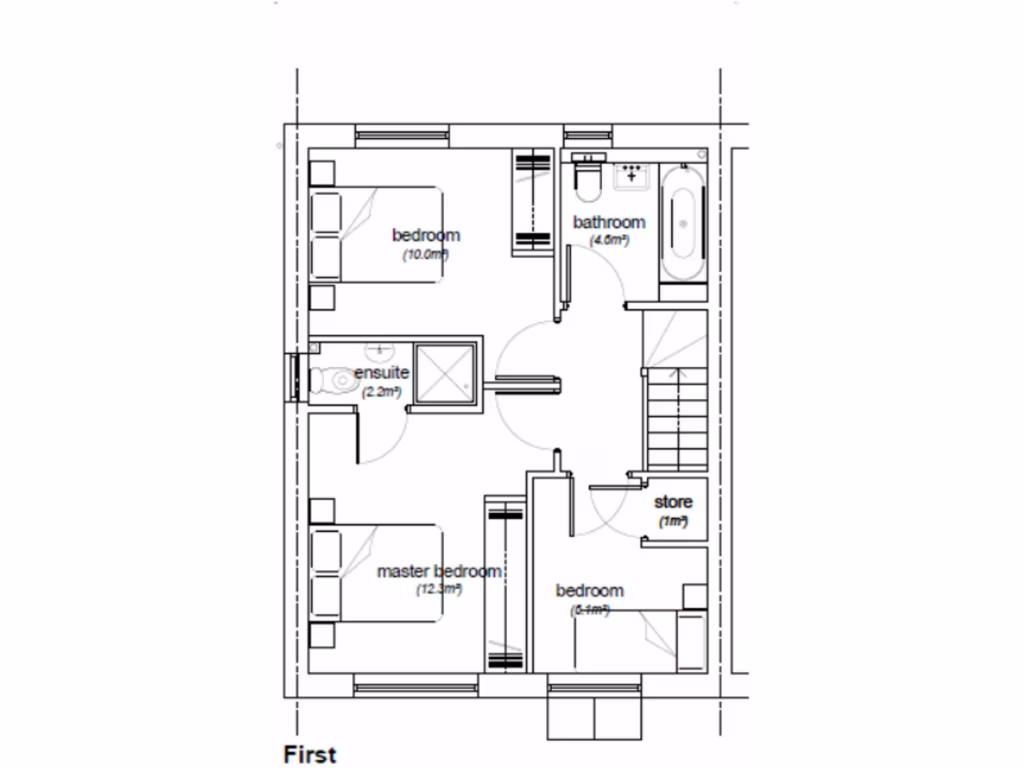
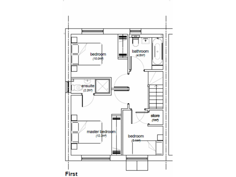
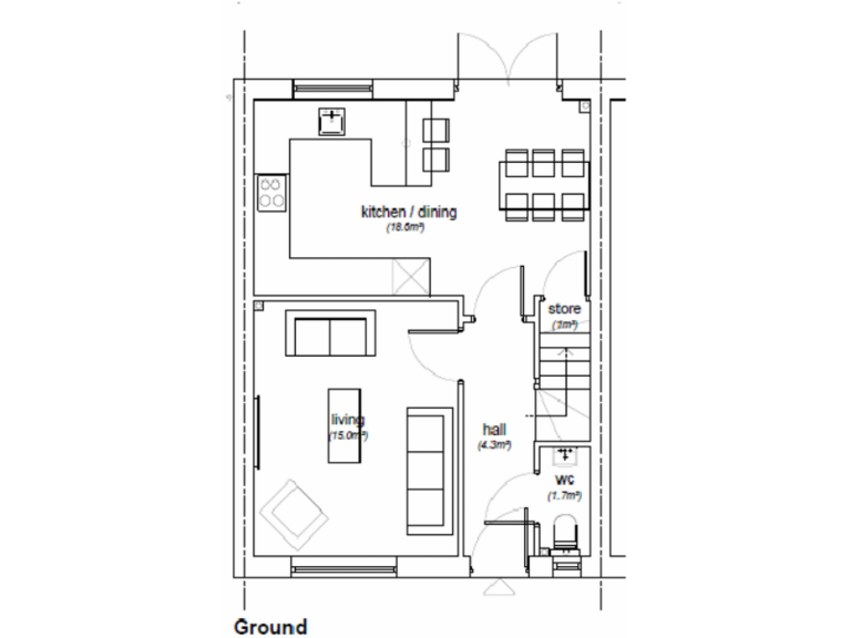
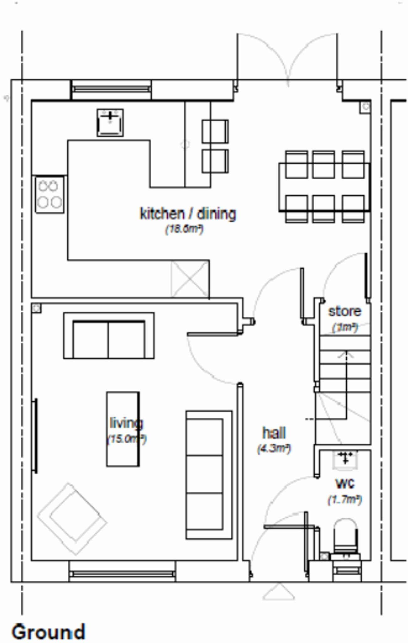
Introducing a beautifully crafted three-bedroom mid-terrace house at Molyneux Gardens in Netherton, perfect for young couples or families seeking a modern living space. The open-plan dining kitchen is fitted with top-of-the-line integrated appliances, and the comfortable living room is bathed in natural light, making it an inviting hub for family life. Upstairs, you’ll find spacious bedrooms, including a luxurious master suite with an en-suite shower room, all stylishly adorned with contemporary finishes.
Outside, the property boasts off-road parking and a garden area awaiting your landscaping ideas, providing a safe space for children to play or for hosting gatherings. Convenience is key, as this home is located just a stone's throw from beautiful natural areas and local amenities, with excellent transport links connecting you to Liverpool, Southport, and Ormskirk.
While the surrounding area does have above-average crime rates and slow broadband speeds, the property's modern appeal and potential make it a worthwhile investment in Netherton's evolving community. Don’t miss this opportunity to secure a contemporary home with ample space that accommodates future personalization and growth. Schedule a viewing today!
3 bedroom terraced house for sale in Molyneux Gardens, Netherton, L30 — £240,000 • 3 bed • 2 bath • 936 ft²
2 bedroom end of terrace house for sale in Molyneux Gardens, Netherton, L30 — £210,000 • 2 bed • 1 bath
3 bedroom semi-detached house for sale in Molyneux Gardens, Netherton, L30 — £255,000 • 3 bed • 2 bath • 936 ft²
4 bedroom semi-detached house for sale in Molyneux Gardens, Netherton, L30 — £305,000 • 4 bed • 2 bath • 1121 ft²
3 bedroom semi-detached house for sale in Molyneux Gardens, Netherton, L30 — £255,000 • 3 bed • 1 bath • 936 ft²
4 bedroom semi-detached house for sale in Molyneux Gardens, Netherton, L30 — £305,000 • 4 bed • 2 bath • 1122 ft²


























































































