**Standout Features:**
- Beautifully presented 1930s end-terrace home
- Extended and newly remodeled with modern finishes
- Exceptional city views, including the Bristol skyline
- Spacious open-plan kitchen and dining area with vaulted ceiling
- Wrap-around garden with various entertaining spaces
- Off-road parking and carport accessible via gated lane
- No onward chain simplifies purchase
- Potential to revert layout for additional bedroom
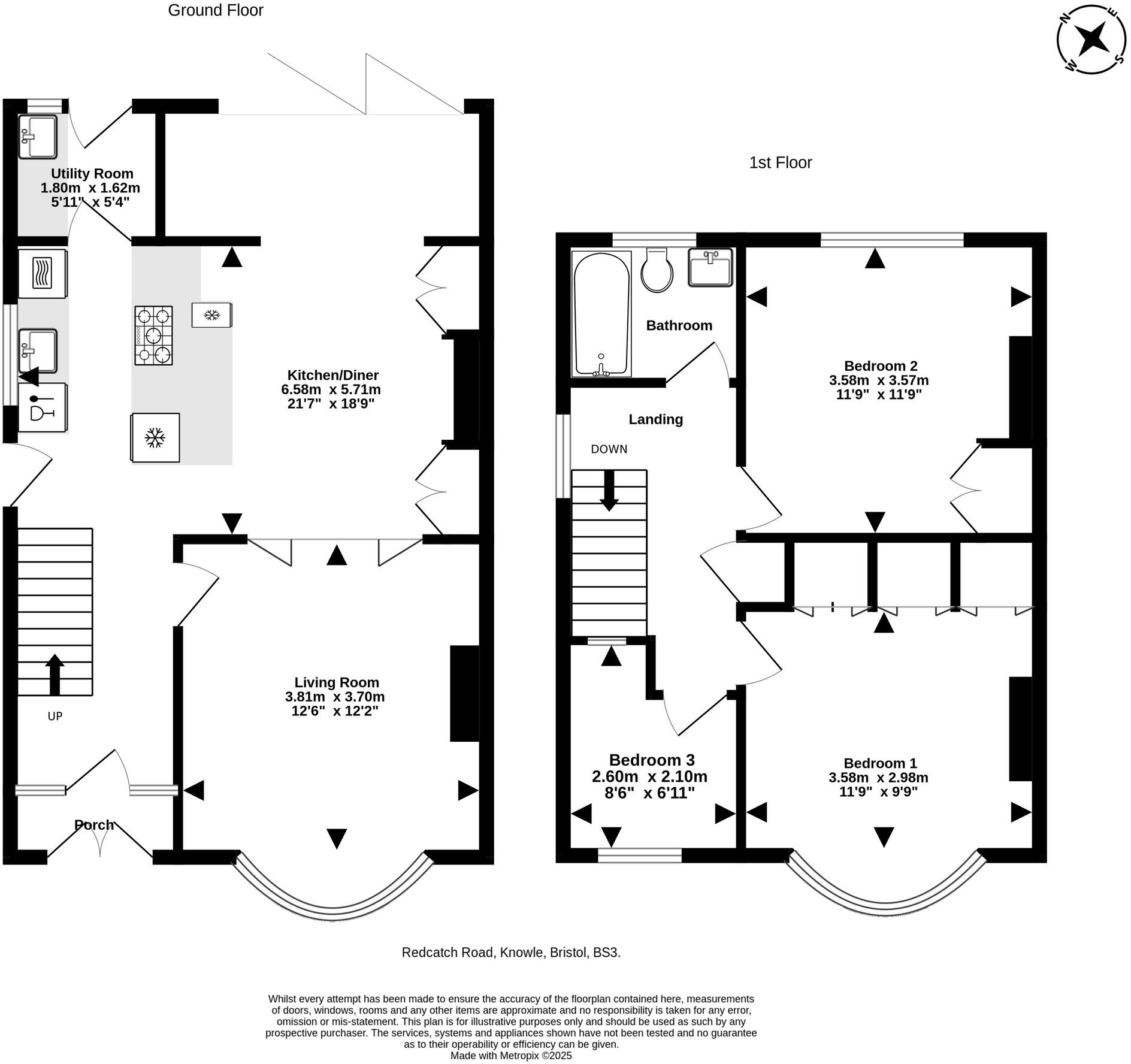
This stunning, newly remodeled three-bedroom home beautifully blends modern aesthetics with classic charm. Upon entering, you're greeted by an expansive open-plan living space that boasts engineered oak flooring, a striking black kitchen with marble countertops, and tri-folding doors that open to a landscaped garden. The property has been extended to create a warm environment perfect for family gatherings or entertaining guests, while the magnificent views from the primary suite enhance its appeal.
Situated in the desirable BS3 area, the home is a stone's throw away from bustling Victoria Park, offering ample recreational opportunities. With local schools rated good and outstanding, this property caters to families seeking both comfort and quality education. The private and elevated outdoor space perfectly complements this welcoming atmosphere, making it an opportunity not to be missed.
Notably, the home is freehold and chain-free, offering a straightforward purchasing process. With the option to revert to a three-bedroom layout, flexibility within the property adds significant potential for buyers. Don’t miss your chance to secure this exclusive home!
3 bedroom end of terrace house for sale in Redcatch Road, Bedminster, Bristol, BS3 — £460,000 • 3 bed • 1 bath • 969 ft²
3 bedroom terraced house for sale in Redcatch Road, Knowle, BRISTOL, BS3 — £475,000 • 3 bed • 1 bath • 940 ft²
2 bedroom terraced house for sale in Gwilliam Street, Windmill Hill, BRISTOL, BS3 — £460,000 • 2 bed • 1 bath • 1158 ft²
3 bedroom terraced house for sale in Redcatch Road, Knowle, BS4 — £625,000 • 3 bed • 2 bath • 1420 ft²
3 bedroom semi-detached house for sale in Wingfield Road, Victoria Park, Bristol, BS3 — £500,000 • 3 bed • 1 bath • 1715 ft²
3 bedroom terraced house for sale in Redcatch Road, Knowle, Bristol, BS3 — £400,000 • 3 bed • 1 bath • 947 ft²






























































































































