Single-storey home with garage and large plot — ideal for downsizers seeking a project.
Chain free sale — immediate completion possible
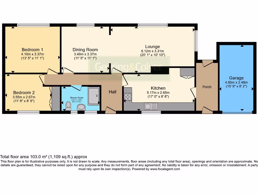
Two double bedrooms, two reception rooms, single shower room
Garage plus off-road parking; large plot with enclosed rear garden
Double-aspect lounge opening to dining room for flexible living
Dated interior, textured ceilings, and low ceiling heights throughout
Signs of moss on roof and some damp; maintenance and repairs needed
Guide price £260,000–£280,000; suitable for renovation or rental
Very low flood risk, fast broadband, low local crime
This mid-20th-century bungalow offers single-storey living on a large plot in a quiet New Romney neighbourhood — a straightforward option for buyers seeking to downsize or retire without stairs. The property includes two bedrooms, two reception rooms, a kitchen with space for appliances and an Aga-style range, plus a garage and off‑road parking. The lounge is double-aspect and opens into the dining room, creating a flexible living area that faces the rear garden.
The bungalow is offered chain free and sits in a low-crime, affluent area with very low flood risk and fast broadband — practical strengths for continuing independent living or a rental investment. Nearby schools and small-town amenities are within easy reach, making day-to-day life convenient.
Practical drawbacks are clear and priced accordingly. The house needs internal modernisation: dated fixtures, textured ceilings and some signs of damp and moss on the roof indicate maintenance is required. Ceiling heights are generally low and room sizes are small-to-medium, so the layout will suit those who prioritise ease of maintenance over expansive rooms. Buyers should allow budget for updating the kitchen, bathroom and roof/roofline works.
Overall this bungalow presents a realistic, manageable project on a large plot with garage and parking. It will suit downsizers wanting single‑level living who are prepared to invest in cosmetic and maintenance works, or investors seeking a refurbishment opportunity in a quiet coastal‑fringe setting.
2 bedroom bungalow for sale in Dymchurch Road, New Romney, Kent, TN28 — £300,000 • 2 bed • 1 bath • 763 ft²
2 bedroom bungalow for sale in Spitalfield Lane, New Romney, Kent, TN28 — £425,000 • 2 bed • 1 bath • 704 ft²
2 bedroom bungalow for sale in Poplar Lane, Lydd, Romney Marsh, Kent, TN29 — £250,000 • 2 bed • 1 bath • 627 ft²
3 bedroom detached bungalow for sale in Seaway Road, St. Marys Bay, Romney Marsh, TN29 — £250,000 • 3 bed • 1 bath • 678 ft²
2 bedroom semi-detached bungalow for sale in Seaway Gardens, St. Mary's Bay, Romney Marsh, Kent, TN29 — £290,000 • 2 bed • 1 bath • 647 ft²
3 bedroom bungalow for sale in Drakes Lee, Littlestone, New Romney, Kent, TN28 — £450,000 • 3 bed • 2 bath • 773 ft²






























































