Spacious 3/4-bed family chalet with garage, garden and field views.
Vaulted kitchen/dining with skylights and large glazed doors
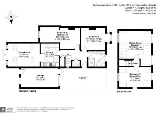
Set on Castlemans Lane, this adaptable 3/4-bedroom chalet-style semi delivers roomy family living and field views in a quiet Hayling Island setting. The open-plan kitchen/dining space impresses with vaulted ceilings, skylights and glazed doors that bring light and a sense of space, while the living room upstairs takes advantage of elevated vistas. Two bedrooms on the ground floor make the layout practical for multigenerational use or flexible home-working.
Externally the property sits on a large plot with a well-established east-facing rear garden, paved patio, lawn zones and useful garden sheds. Off-road parking is generous with a private driveway, carport and a large garage that will suit hobbyists or extra storage. The house is freehold and in a very low-crime, affluent village neighbourhood close to coastal paths and local schools.
Buyers should note some practical considerations: the property dates from the late 1960s/early 1970s and the cavity walls are assumed to be uninsulated, so further insulation/energy improvements may be needed. Broadband speeds are slow in the area, there is a single family bathroom and glazing installation dates are unknown. Overall, this is a spacious, characterful family home with good potential for updating and alteration to suit modern needs.
5 bedroom semi-detached house for sale in Manor Road, Hayling Island, PO11 — £550,000 • 5 bed • 2 bath • 1737 ft²
3 bedroom chalet for sale in Astrid Close, Hayling Island, PO11 — £475,000 • 3 bed • 2 bath • 1438 ft²
3 bedroom semi-detached house for sale in Avenue Road, Hayling Island, PO11 — £425,000 • 3 bed • 1 bath • 1931 ft²
4 bedroom semi-detached house for sale in Meath Close, Hayling Island, Hampshire, PO11 — £350,000 • 4 bed • 2 bath • 1249 ft²
5 bedroom detached house for sale in St. Aubins Park, Hayling Island, Hampshire, PO11 — £825,000 • 5 bed • 2 bath • 2382 ft²
4 bedroom house for sale in Church Road, Hayling Island, PO11 — £575,000 • 4 bed • 3 bath • 1600 ft²






































































