Characterful two-bedroom home with a private west garden near East Croydon station.
- Two spacious double bedrooms with ample storage
- Modern bathroom with separate bath and shower
- Newly renovated interiors; move-in ready condition
- West-facing private garden; small plot size
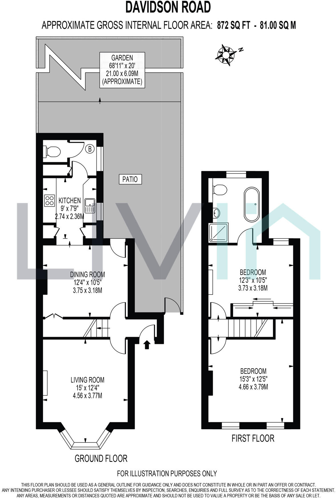
- Freehold tenure; approx. 872 sq ft overall
- Solid brick walls; likely no cavity wall insulation
- Excellent transport links to East Croydon station
- Local area shows higher crime and deprivation levels
This recently refreshed Victorian semi-detached home pairs period character with contemporary finishes, making it an appealing option for growing families and commuters. The living room’s bay window and elegant cornicing retain original charm while the kitchen and bathroom are modern and practical.
Upstairs provides two generous double bedrooms and a stylish family bathroom with a separate shower and freestanding bath. The property is freehold, averages about 872 sq ft and benefits from gas central heating via a boiler and radiators.
Outdoor space is a west-facing private garden with patio and lawn — small but well-suited to summer entertaining and family use. East Croydon station and local shops, cafes and parks are within easy reach, supporting commuter convenience and everyday living.
Buyers should note a few material points: the house is on a small plot with limited external space, the solid brick construction likely lacks built-in wall insulation, and the wider area records higher-than-average crime and deprivation statistics. Overall, this is a well-presented, move-in-ready Victorian home offering strong location benefits and scope to improve thermal efficiency over time.
3 bedroom terraced house for sale in Davidson Road, Croydon, Surrey, CR0 — £400,000 • 3 bed • 1 bath • 865 ft²
3 bedroom semi-detached house for sale in Davidson Road, Croydon, CR0 — £500,000 • 3 bed • 1 bath • 954 ft²
3 bedroom house for sale in Davidson Road, Croydon, CR0 — £475,000 • 3 bed • 1 bath • 926 ft²
5 bedroom semi-detached house for sale in Alexandra Road, CR0 — £550,000 • 5 bed • 2 bath • 1650 ft²
2 bedroom terraced house for sale in Church Road, Croydon, CR0 — £425,000 • 2 bed • 1 bath • 2676 ft²
2 bedroom apartment for sale in Davidson Road, Croydon, CR0 — £325,000 • 2 bed • 1 bath • 552 ft²


















































