**Standout Features:**
- Charming two-bedroom garden flat on the ground floor
- Traditional Victorian design with attractive bay window and log-burning stove
- Modern, separate kitchen with integrated appliances
- Private garden space accessible from a second bedroom
- Located on a peaceful street just five minutes from Alexandra Palace Train Station
- Affluent, cosmopolitan neighborhood with vibrant local amenities
**Potential Concerns:**
- Leasehold tenure may involve service charge and ground rent obligations
- Average mobile signal and broadband speeds
**Summary:**
This delightful two-bedroom garden flat in Alexandra Palace combines Victorian charm with modern living. The spacious reception area features an elegant bay window and cozy log-burning stove, perfect for relaxing evenings. The property's well-appointed kitchen includes integrated appliances, while both bedrooms offer character—especially the main bedroom with its ample built-in storage. Step outside to enjoy your own private garden, a tranquil escape ideal for unwinding or entertaining.
Nestled on a quiet road with attractive terraced homes, this flat is just a short walk to the lush Alexandra Park and a variety of independent cafes, pubs, and restaurants, catering to your social and recreational needs. With excellent local schools and fast transport links, this property is ideal for families, first-time buyers, or investors seeking rental potential. Don’t miss the opportunity to make this welcoming retreat your home—properties like this are in high demand and won't last long!
2 bedroom flat for sale in Victoria Road, Alexandra Park, N22 7XA, N22 — £595,000 • 2 bed • 1 bath • 767 ft²
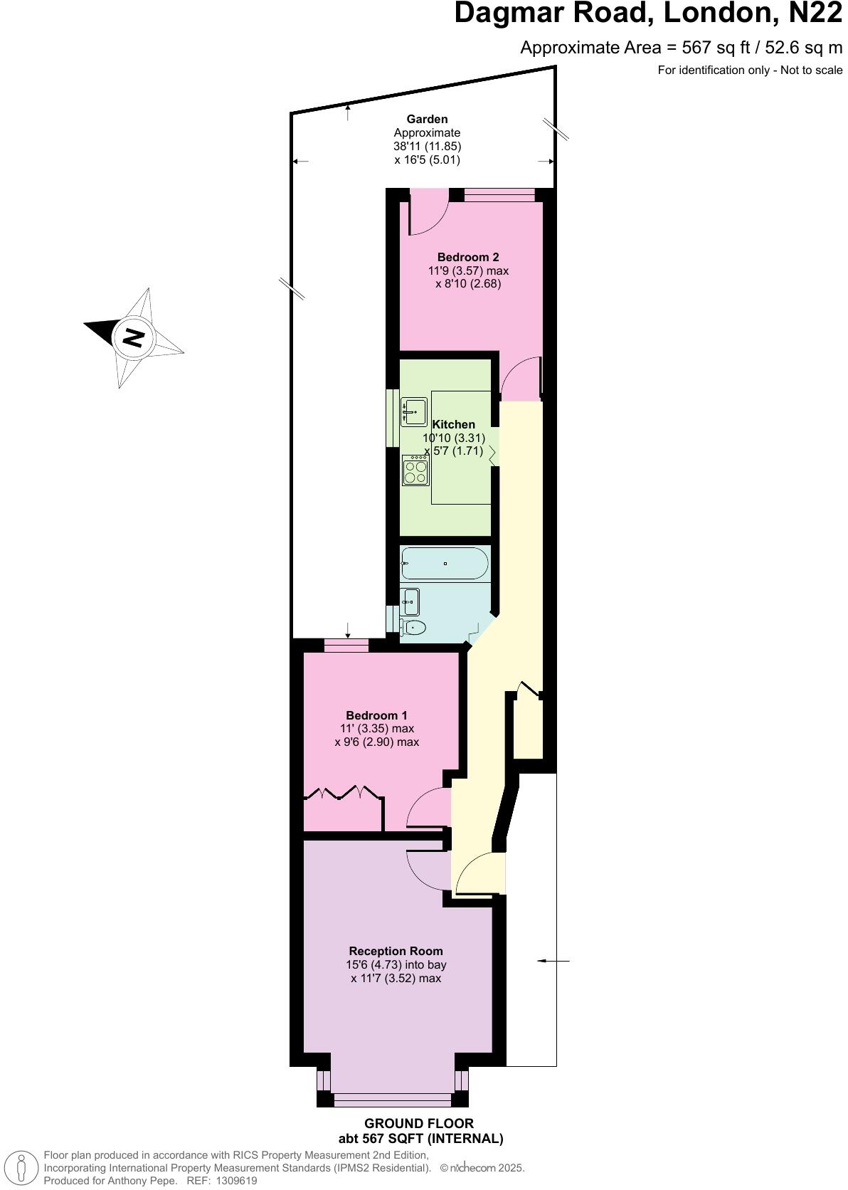
2 bedroom flat for sale in Dagmar Road, London, N22 — £550,000 • 2 bed • 1 bath • 678 ft²
2 bedroom maisonette for sale in Crescent Road, London, N22 — £550,000 • 2 bed • 1 bath • 791 ft²
1 bedroom flat for sale in Victoria Road, London, N22 — £425,000 • 1 bed • 1 bath • 436 ft²
2 bedroom terraced house for sale in Alexandra Park Road, London, N22 — £650,000 • 2 bed • 1 bath • 689 ft²
1 bedroom flat for sale in 84 Victoria Road, N22 — £460,000 • 1 bed • 1 bath • 487 ft²










































































































































