**Standout Features:**
- Newly built 1-bedroom apartment with modern finishes
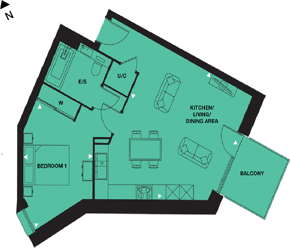
- West-facing balcony offering stunning city views
- Part of the Hayes regeneration scheme, rich in musical heritage
- Rooftop terrace and fully integrated Zanussi appliances
- Just a 7-minute walk to Hayes & Harlington station on the Elizabeth Line
- Fully furnished and ready to move in, requiring only a 10% deposit
This contemporary 1-bedroom apartment offers an exceptional investment opportunity in the heart of Hayes, just steps away from vibrant cafes, bars, and the historic Old Vinyl Factory complex. Featuring an efficient layout across 546 sq ft, the property includes a west-facing balcony that invites ample natural light and provides a relaxing view of the cityscape. The well-designed open-plan living and kitchen area comes complete with high-quality Zanussi appliances, elegant quartz worktops, and instant boiling water tap, making it perfect for modern living.
Ideal for young professionals or investors, this newly renovated gem is just a 7-minute walk to Hayes & Harlington station, whisking you to London Paddington in approximately 20 minutes. As part of a larger regeneration effort, residents will also benefit from upcoming amenities including a cinema and live music venue. With competitive pricing at £330,000 and the option for flexible financing, this apartment won’t last long—secure your viewing today and be part of an exciting community set to flourish.
1 bedroom apartment for sale in The Venue, Powerhouse Lane, UB3 — £309,995 • 1 bed • 1 bath • 546 ft²
1 bedroom apartment for sale in Gramophone Lane, Hayes, UB3 — £325,000 • 1 bed • 1 bath • 536 ft²
1 bedroom flat for sale in Powerhouse Lane, Hayes, Middlesex, UB3 — £315,000 • 1 bed • 1 bath • 540 ft²
1 bedroom apartment for sale in Gramophone Lane, Hayes, UB3 — £300,000 • 1 bed • 1 bath • 607 ft²
1 bedroom apartment for sale in Gramophone Lane, Hayes, UB3 — £300,000 • 1 bed • 1 bath • 528 ft²
1 bedroom apartment for sale in 7 Gramophone Lane, Hayes, UB3 1FP, UB3 — £300,000 • 1 bed • 1 bath • 528 ft²






























