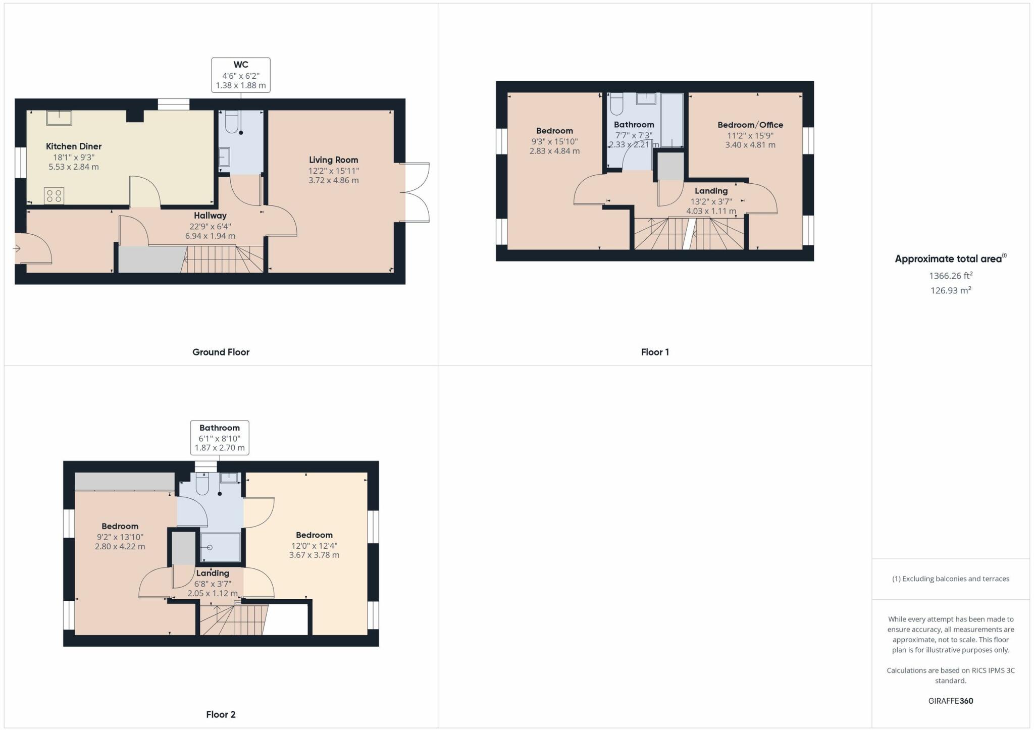
Freehold four-bedroom semi-detached over three floors
Detached garage, driveway parking for several vehicles
EV charger fitted for electric vehicles
Low-maintenance enclosed rear garden with sandstone paving
EPC rating B; gas central heating and uPVC double glazing
Jack’n’Jill shower room plus family bathroom and cloakroom
Area has above-average crime; buyers should consider local safety
One nearby primary rated Inadequate; other local schools rated Good
A well-presented four-bedroom semi-detached home arranged over three floors, ideal for growing families needing flexible space. The property offers practical features including a detached garage, off-road parking, EV charger and a low-maintenance rear garden — useful for busy households.
The interior is light and modern with a lounge opening to the garden, a fitted kitchen-diner with integrated appliances, and a convenient Jack’n’Jill shower room serving the top-floor bedrooms. EPC rating B and gas central heating provide reasonable running costs and comfort.
Buyers should note the wider area has above-average crime levels and mixed local social indicators. One nearby primary school is currently rated Inadequate; several other local schools are rated Good, including a well-regarded secondary. The home is freehold and offers scope for modest updating to personalise finishes.
Overall this is a practical, well-located family home with good transport links into the city, sensible running costs and useful parking/EV charging for modern life. An internal viewing is recommended to appreciate room sizes and layout.
4 bedroom semi-detached house for sale in Richmond Park Road, Mackworth, Derby, DE22 — £330,000 • 4 bed • 3 bath • 1022 ft²
3 bedroom semi-detached house for sale in Battersea Park Way, Mackworth, DE22 — £220,000 • 3 bed • 2 bath • 1368 ft²
4 bedroom detached house for sale in Richmond Park Road, Derby, DE22 — £330,000 • 4 bed • 2 bath • 1185 ft²
4 bedroom detached house for sale in Richmond Park Road, Derby, DE22 — £330,000 • 4 bed • 2 bath • 1073 ft²
4 bedroom semi-detached house for sale in Richmond Park Road, Derby, DE22 — £270,000 • 4 bed • 2 bath • 824 ft²
3 bedroom semi-detached house for sale in Merton Drive, Mackworth, Derby, DE22 — £235,000 • 3 bed • 2 bath • 956 ft²


















































































