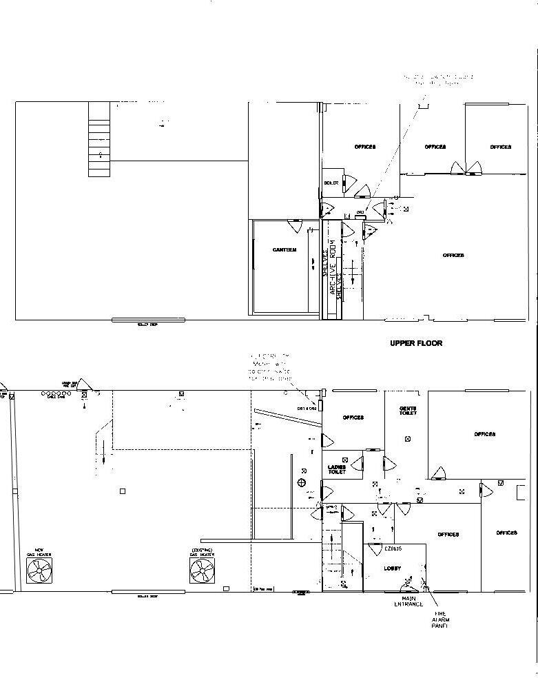
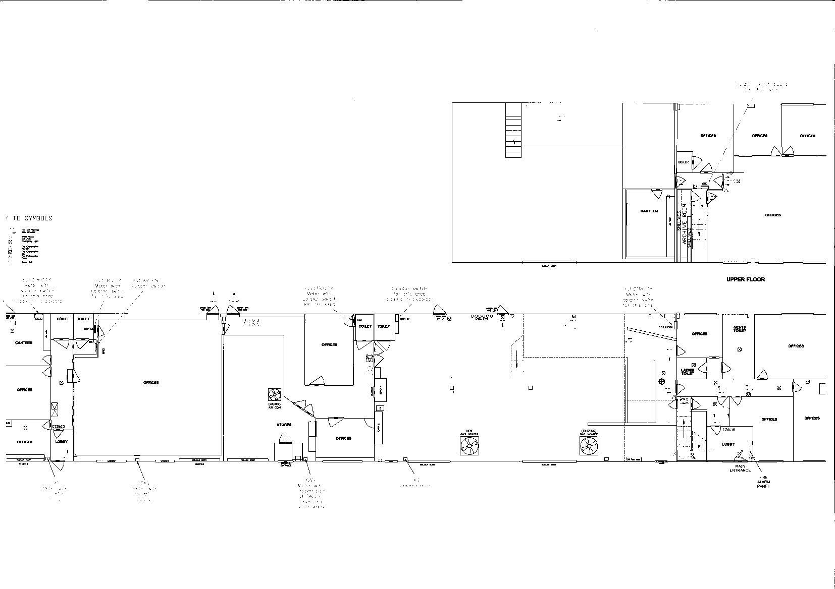
**Standout Features:**
- Large, versatile office and workshop space (5,173 sq ft).
- Excellent location within a modern business park near Oundle.
- Superb transport links to A1, A14, M1, and M6.
- Equipped with solar panels, gas heating, and air conditioning.
- Ample parking for staff and visitors.
**Potential Concerns:**
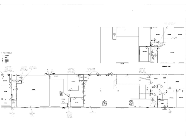
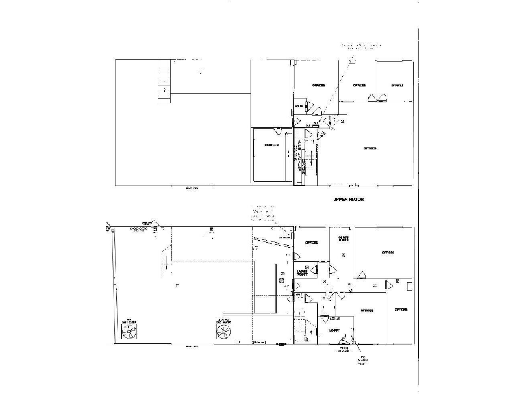
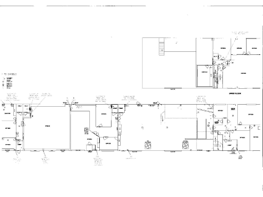
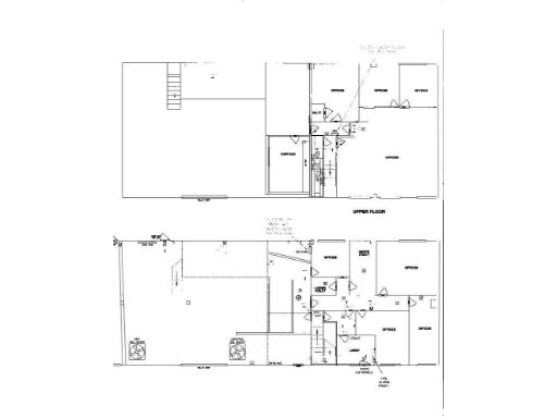
- Office space has outdated 1970s design with low ceilings.
- Broadband speeds indicated as slow.
This expansive property presents an exceptional opportunity for business owners or investors seeking a well-maintained workspace. Comprising a mix of modern offices and workshop facilities, it is equipped with essential amenities like air conditioning, radiators, and robust power supply. The property includes a large open-plan main office with the flexibility for demountable partitions, multiple smaller offices, and a spacious workshop with a roller shutter door—ideal for varied business operations.
Conveniently located just a stone's throw away from the vibrant market town of Oundle and close to major road networks, this space caters well to both operational needs and employee comfort. The surrounding area offers a peaceful, rural lifestyle with access to local amenities, excellent schools, and leisure activities, making it a great fit for those transitioning to a work-life balance.
While the current office design may need updates, the scale and adaptability of this property allows for significant renovation potential, ensuring it can be tailored to meet specific business requirements. With a price of £585,000, seize this opportunity before it’s gone—your ideal workspace awaits.
Industrial park for sale in Tresham Road, Orton Southgate, Peterborough, PE2 6SG, PE2 — £380,000 • 1 bed • 1 bath • 4830 ft²
Light industrial facility for sale in Durban Road, Kettering, Northamptonshire, NN16 — £195,000 • 1 bed • 1 bath • 1806 ft²
Office for sale in National House, 4 Spitfire Close, Huntingdon, PE29 6XY, PE29 — £199,950 • 1 bed • 1 bath • 1247 ft²
Light industrial facility for sale in 5 Milnyard Square, Orton Southgate, Peterborough, PE2 6GX, PE2 — £575,000 • 1 bed • 1 bath • 5217 ft²
Warehouse for sale in L, Sawtry Business Park, Sawtry, Huntingdon, Cambridgeshire, PE28 5GQ, PE28 — £220,000 • 1 bed • 1 bath • 2712 ft²
Office for sale in Unit 3 The Forum, Minerva Business Park, Lynchwood, Peterborough, PE2 6FT, PE2 — £749,500 • 1 bed • 1 bath • 5566 ft²














































