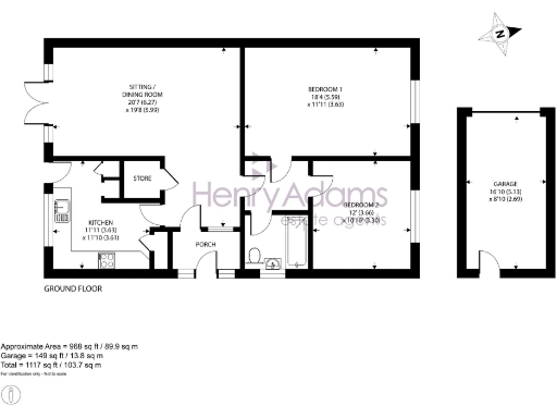
**Standout Features:**
- Charming 2-bedroom semi-detached bungalow on a generous corner plot
- South-facing garden ideal for outdoor lounging and entertaining
- Spacious sitting/dining room with fireplace and direct garden access
- Well-equipped kitchen with ample storage, fitting for modern appliances
- Large main bedroom with built-in wardrobes and second flexible double bedroom
- Updated heating system with gas boiler (2018) for year-round comfort
- Single garage and driveway parking for two vehicles
- Ideally located in a peaceful, affluent area with low crime rates
- Proximity to highly-rated primary schools
This beautifully presented 2-bedroom bungalow offers a perfect blend of comfort and potential for first-time buyers and families alike. Set on a generous corner plot with a delightful south-facing garden, you can bask in sunlight all day or indulge in al fresco dining. The heart of the home is a bright and airy sitting/dining room, complete with a cozy fireplace and direct access to the garden, perfect for entertaining or relaxing.
The well-designed kitchen provides ample storage and space for modern appliances, while the sizable main bedroom features built-in wardrobes for effortless organization. The second double bedroom offers flexibility for guests, a home office, or a growing family. The modern bathroom gives an additional touch of luxury to this inviting home.
Outside, visitors will appreciate a substantial garage and driveway parking for two vehicles, enhancing convenience and security. With a recently upgraded heating system and a peaceful neighborhood that boasts low crime rates and access to good schools, this bungalow is not just a house, but a cherished home waiting for new memories to be made. Don’t miss the opportunity to claim this beautiful retreat; properties of this quality are rare to the market!
2 bedroom bungalow for sale in Morleys, Ashington, RH20 — £475,000 • 2 bed • 1 bath • 888 ft²
2 bedroom bungalow for sale in Fox Road, Haslemere, Surrey, GU27 — £455,000 • 2 bed • 1 bath • 762 ft²
2 bedroom detached bungalow for sale in High Bar Lane, Thakeham, RH20 — £380,000 • 2 bed • 2 bath • 963 ft²
3 bedroom detached bungalow for sale in Holly Close, West Chiltington, RH20 — £580,000 • 3 bed • 1 bath • 1130 ft²
2 bedroom detached bungalow for sale in Orchard Dell, Pulborough, West Sussex, RH20 — £575,000 • 2 bed • 1 bath • 1260 ft²
3 bedroom bungalow for sale in Masons Way, Codmore Hill, Pulborough, West Sussex, RH20 — £675,000 • 3 bed • 2 bath • 1354 ft²






























































































































