**Standout Features:**
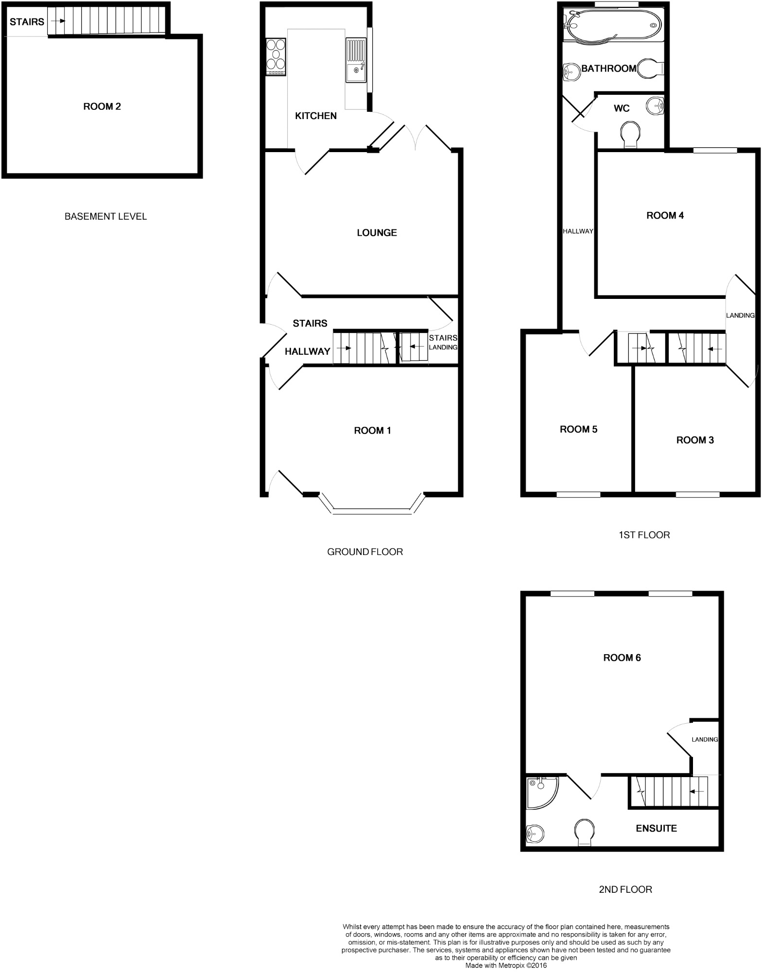
- **6 Bedrooms**: Spacious and ideal for student accommodation.
- **2 Bathrooms**: Designed to support multiple tenants comfortably.
- **Shared Living Areas**: Includes a communal lounge, perfect for socializing.
- **Fitted Kitchen**: Modern with ample storage and workspace.
- **Private Garden**: A low-maintenance outdoor area for relaxation and entertaining.
- **Excellent Location**: Just a nine-minute walk to the University of Worcester, surrounded by local shops, eateries, and bus stations.
- **Current Rental Demand**: Fully let for the 2024-25 academic year at a gross rent of £38,160, with potential for £38,400 in 2025-26.
This six-bedroom, semi-detached home on Comer Road, Worcester, is a fantastic investment opportunity with excellent rental potential. Positioned in a prime student-friendly location, this property offers practical amenities including two bathrooms, a shared living room, and a well-equipped kitchen, making it a comfortable living space for tenants. The spacious garden provides a refreshing outdoor escape, while on-street parking adds convenience.
With a fully booked rental income for the next academic year and strong potential yields, this property is perfect for investors looking to capitalize on Worcester's thriving rental market. However, the property's historical construction may raise concerns about maintenance and insulation; buyers are encouraged to explore renovation possibilities to enhance its appeal further. Don’t miss out on this lucrative opportunity—properties like this, with solid income potential and a desirable location, are in high demand and won’t last long!
5 bedroom semi-detached house for sale in Comer Road, Worcester, Worcestershire, WR2 5HY, WR2 — £315,000 • 5 bed • 2 bath • 1303 ft²
4 bedroom semi-detached house for sale in Comer Road, Worcester, Worcestershire, WR2 5HS, WR2 — £250,000 • 4 bed • 2 bath • 1098 ft²
6 bedroom link detached house for sale in Lodge Close, Worcester, Worcestershire, WR2 — £280,000 • 6 bed • 2 bath • 1055 ft²
7 bedroom semi-detached house for sale in Henwick Road, Worcester, WR2 — £430,000 • 7 bed • 3 bath • 1660 ft²
5 bedroom semi-detached house for sale in Henwick Road, Worcester, Worcestershire, WR2 5NY, WR2 — £310,000 • 5 bed • 2 bath • 1314 ft²
5 bedroom semi-detached house for sale in Nelson Road, Worcester, Worcestershire, WR2 5BL, WR2 — £315,000 • 5 bed • 2 bath • 1292 ft²


















