**Standout Features:**
- Spacious two-bedroom detached bungalow
- Generous south-facing garden, un-overlooked
- Double length garage (37') with carport and parking for two cars
- Short stroll to Bramford village center
- No onward chain, making for a smooth transition
**Potential Concerns:**
- Dated interior may require updates
- Double glazing installed prior to 2002 may need replacement
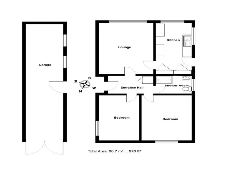
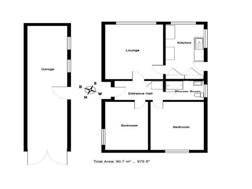
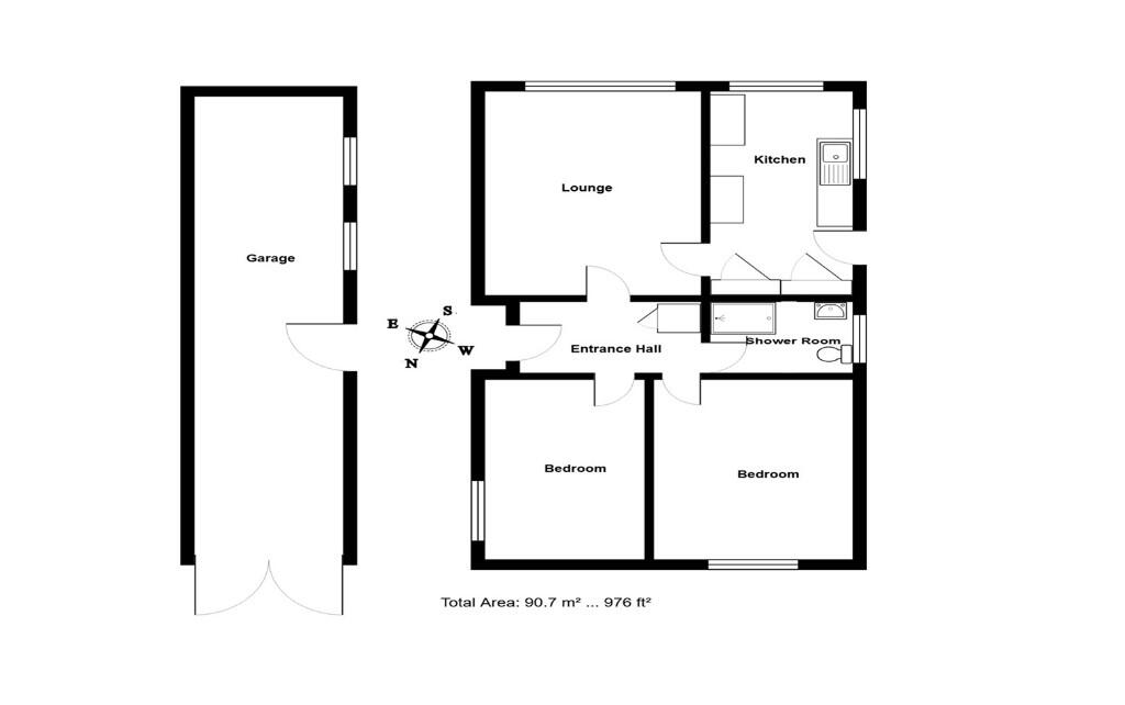
Discover the charm of this deceptively spacious detached bungalow, perfectly positioned in the beautiful village of Bramford. With two roomy double bedrooms and a bright sitting room featuring a large picture window that overlooks the generous south-facing garden, this home effortlessly combines comfort and potential. The inviting kitchen/breakfast room is ideal for family gatherings, while the accompanying shower room ensures convenience.
Outside, the property boasts ample off-road parking with a carport leading to a 37-foot long double garage, accommodating all your storage and vehicle needs. The expansive, un-overlooked rear garden provides an idyllic retreat, perfect for outdoor activities or relaxing evenings. While the bungalow exudes mid-century character, some areas may benefit from a thoughtful update.
Located within walking distance to a well-serviced village center and just three miles from Ipswich, this home offers both tranquility and accessibility. With no onward chain, this property represents a fantastic opportunity to settle into a vibrant community. Don’t miss out on the chance to create your dream space in this desirable location—schedule a viewing today!
2 bedroom detached bungalow for sale in The Street, Bramford, Ipswich, Suffolk, IP8 — £300,000 • 2 bed • 1 bath • 1052 ft²
2 bedroom semi-detached bungalow for sale in Ravens Lane, Bramford, Ipswich, Suffolk, IP8 — £259,995 • 2 bed • 1 bath • 933 ft²
2 bedroom semi-detached bungalow for sale in Orchard Road, IP8 — £280,000 • 2 bed • 1 bath • 963 ft²
2 bedroom bungalow for sale in Packard Place, Bramford, Ipswich, Suffolk, IP8 — £290,000 • 2 bed • 1 bath • 900 ft²
3 bedroom detached bungalow for sale in Bullen Close, Bramford, Ipswich, Suffolk, IP8 — £395,000 • 3 bed • 1 bath • 1337 ft²
3 bedroom detached bungalow for sale in Acton Gardens, Bramford, Ipswich, Suffolk, IP8 — £325,000 • 3 bed • 1 bath • 1107 ft²






































