Immediate income with ground-floor upside in a regenerating town-centre location.
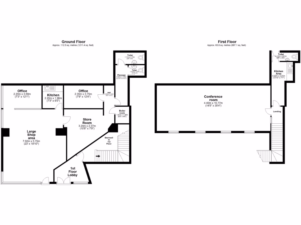
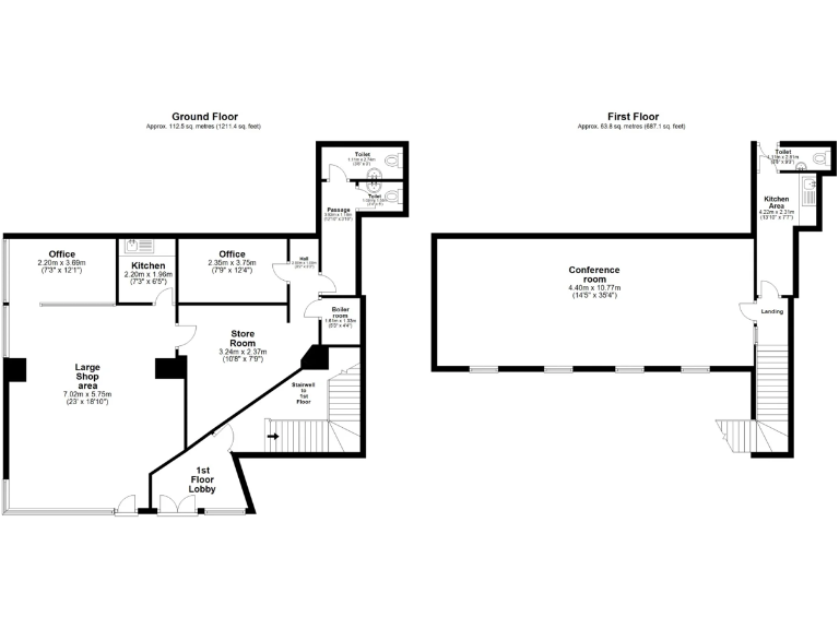
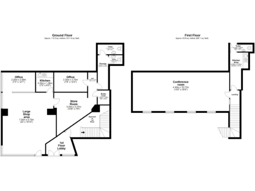
- Approx. 1,628 sq ft over two floors
- First floor let at £400 pcm (currently occupied)
- Ground floor potential rent £900 pcm if re-let
- Estimated gross yield c.12% at current price
- Small plot with multi-room layout (11 rooms)
- Located in very deprived area with high crime rates
- Within Riverside regeneration zone (long-term upside)
- Tenure unknown; buyer to verify legal status
A large two-storey mid-terrace commercial property on busy Yarm Lane, offering flexible ground-floor retail/office space and a separately accessed first floor. The building extends to approximately 1,628 sq ft and sits within an area earmarked for Riverside-led regeneration, which supports longer-term footfall and capital growth potential.
The first floor is currently let at £400 pcm, providing an immediate income stream, while the ground floor could be re-let or owner-occupied to increase returns. The location benefits from excellent public transport links and a dense town-centre mix of retail and leisure uses, helping keep the property active throughout the day.
Buyers should note material negatives: the property is in a very deprived area with high local crime rates and sits in a constrained neighbourhood classification. The plot is small and the internal rooms are split into multiple units (approx. 11 rooms), which may require management or reconfiguration to maximise rental value. Tenure is unknown and should be verified prior to purchase.
This opportunity suits investors seeking an immediate income with upside from re-letting the ground floor, or an occupier wanting central town presence with scope to customise. Carrying costs such as business rates apply (rateable value £6,000) though qualifying occupiers may be eligible for small business rate relief.
High street retail property for sale in 18-20 Yarm Lane, Stockton on Tees TS18 1ET, TS18 — £30,000 • 1 bed • 1 bath • 1572 ft²
Land for sale in Prince Regent Street, Stockton-On-Tees, TS18 — £490,000 • 1 bed • 1 bath
Commercial property for sale in High Street, Stockton-On-Tees, TS18 — £250,000 • 2 bed • 1 bath • 14000 ft²
High street retail property for sale in High Street, and 2 and 2a Yarm Lane, Stockton-on-Tees, Durham, TS18 1AA, TS18 — £350,000 • 1 bed • 1 bath • 5809 ft²
High street retail property for sale in 45 High Street, Stockton-on-Tees, TS18 1SB, TS18 — £90,000 • 1 bed • 1 bath • 2213 ft²
Light industrial facility for sale in Prince Regent Street, Stockton-On-Tees, Durham, TS18 — £350,000 • 1 bed • 1 bath • 11160 ft²


























