Spacious Victorian two-bed in Arundel cathedral quarter with garden and garage..
Desirable cathedral-quarter location, short walk to town and park
Good-sized private cottage garden with sunny seating areas
Garage/workshop with direct garden access
Spacious rooms, high ceilings and period fireplaces throughout
Bespoke oak and Corian kitchen with seating/work space
Two large double bedrooms and generous bathroom with shower and bath
Small plot and mid-terrace position — limited outside space beyond garden
Cavity walls assumed uninsulated; broadband average, moderate council tax
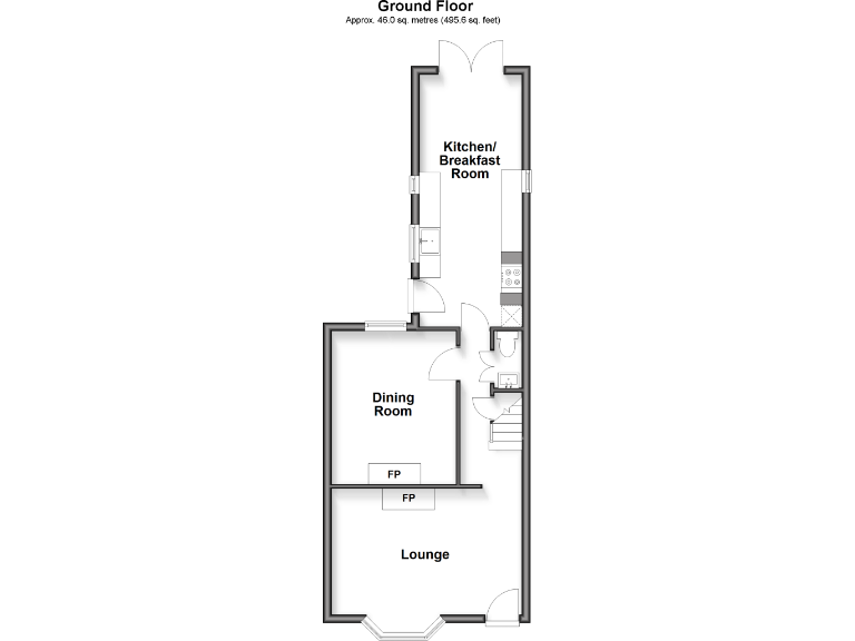
An attractively presented Victorian terraced cottage in Arundel’s coveted cathedral quarter, this two-bedroom home pairs period character with surprisingly generous space. High ceilings, bay windows and original fireplaces give the principal rooms strong charm, while wooden floors and a bespoke oak and Corian kitchen bring modern comfort.
The layout suits family life or flexible working: a bright lounge with bay window, a good-sized dining room that could serve as a second reception or home office, and a long kitchen with a casual seating/work area overlooking the pretty cottage garden. Both double bedrooms are roomy and well lit, and the large bathroom includes bath and separate shower.
Outside, the well-planted cottage garden offers privacy, sunny seating areas and direct rear access to a substantial garage/workshop. The elevated position provides charming cathedral views and puts Arundel’s shops, cafés and park within easy walking distance.
Practical points to note: the property sits on a small plot and is mid-terrace, with cavity walls assumed uninsulated. Broadband speeds are average; council tax is moderate. The house is freehold, has mains gas central heating, and is not at flood risk. Overall this is a spacious, characterful town cottage in an exceptional central location — ideal for families or those wanting a period home with a useful garage and garden.
2 bedroom terraced house for sale in King Street, Arundel, West Sussex, BN18 — £413,000 • 2 bed • 1 bath • 948 ft²
2 bedroom end of terrace house for sale in Orchard Place, Arundel, BN18 — £475,000 • 2 bed • 1 bath • 953 ft²
2 bedroom terraced house for sale in King Street, Arundel, West Sussex, BN18 — £550,000 • 2 bed • 2 bath • 714 ft²
2 bedroom cottage for sale in Mount Pleasant, Arundel, BN18 — £545,000 • 2 bed • 1 bath • 950 ft²
3 bedroom end of terrace house for sale in King Street, ARUNDEL, BN18 — £700,000 • 3 bed • 2 bath • 1702 ft²
2 bedroom terraced house for sale in Orchard Place, Arundel, West Sussex, BN18 — £425,000 • 2 bed • 1 bath • 926 ft²














































































