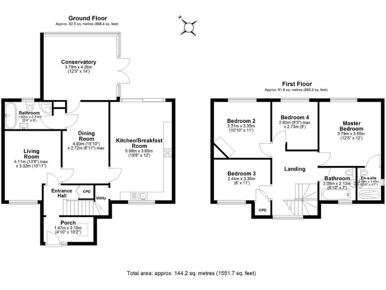
**Standout Features:**
- Spacious four double bedrooms and three bathrooms, including a master with en suite.
- Modern kitchen/breakfast room with potential for updates.
- Inviting conservatory and separate dining room ideal for family gatherings.
- Off-street parking with scope for additional space.
- Enclosed garden for outdoor enjoyment.
- Chain-free, allowing for a quick move-in.
**Property Summary:**
Discover this generously sized semi-detached family home in a favorable EX14 location. Offering an impressive four double bedrooms and three bathrooms, including a master en suite, it provides ample space for both family living and entertaining. The ground floor comprises a light-filled kitchen/breakfast room ready for your renovation ideas, a cozy lounge, a separate dining area, and a conservatory that invites natural light and garden views.
Set on an accessible plot with off-street parking, the property boasts a partially enclosed garden perfect for outdoor activities or gardening enthusiasts. With no onward chain, you can move in swiftly and begin personalizing your new home to match your vision. This residence is situated within easy reach of several well-rated schools and local amenities including parks and sporting facilities, making it an excellent choice for families or first-time buyers. Act fast—properties like this, especially with such potential and flexibility, can be rare to find!
4 bedroom end of terrace house for sale in St Marks Road, Honiton, EX14 — £260,000 • 4 bed • 2 bath • 1111 ft²
3 bedroom semi-detached house for sale in West View Terrace, Honiton, EX14 — £299,950 • 3 bed • 1 bath • 801 ft²
4 bedroom semi-detached house for sale in Gronau Close, Honiton, Devon, EX14 — £300,000 • 4 bed • 2 bath • 1100 ft²
4 bedroom detached house for sale in Glen Farm Crescent, Honiton, EX14 — £500,000 • 4 bed • 2 bath • 1199 ft²
3 bedroom semi-detached house for sale in Tweed Close, Honiton, Devon, EX14 — £274,000 • 3 bed • 1 bath • 793 ft²
4 bedroom semi-detached house for sale in Millhead Road, Honiton, Devon, EX14 — £300,000 • 4 bed • 2 bath • 1043 ft²


































































