Chain-free three-bed with large garden and extension potential.
Chain free freehold mid-terrace, 969 sq ft, three bedrooms
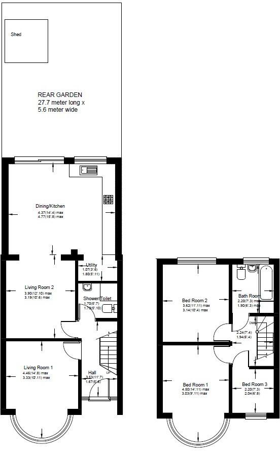
A well-proportioned three-bedroom mid-terraced home on Kenmore Avenue, offered chain free and ready for occupation or rental. The ground floor provides two reception rooms plus a large modern fitted kitchen, while two bathrooms (one on each floor) suit busy households and sharers. The private 28-metre rear garden and driveway parking are stand-out practical benefits for families and tenants.
The house dates from the 1930–49 period with double glazing added after 2002, mains gas central heating and a solid-brick construction. There is clear potential to increase living space by extending to the rear and into the loft, subject to usual planning permissions — a realistic route to add value for first-time buyers or buy-to-let investors.
Be aware of a few material points: the solid brick walls are assumed to have no insulation, so improving thermal performance may be advisable; room sizes are average for the build era and the plot; any loft or rear extension will need planning consent. Overall this property suits buyers seeking an affordable entry into Harrow with useful garden space, strong local schools and scope to improve and personalise.
5 bedroom semi-detached house for sale in Kingshill Avenue, Kenton, HA3 8LA, HA3 — £750,000 • 5 bed • 2 bath • 1448 ft²
3 bedroom semi-detached house for sale in Kingshill Drive, Kenton, HA3 8QD, HA3 — £635,000 • 3 bed • 2 bath • 1161 ft²
3 bedroom semi-detached house for sale in Streatfield Road, Kenton, HA3 9BP, HA3 — £650,000 • 3 bed • 1 bath • 1068 ft²
3 bedroom terraced house for sale in Alicia Avenue, Harrow, HA3 — £570,000 • 3 bed • 1 bath • 1302 ft²
3 bedroom semi-detached house for sale in Elmsleigh Avenue, Kenton, HA3 8JA, HA3 — £660,000 • 3 bed • 1 bath • 1106 ft²
5 bedroom semi-detached house for sale in Cheltenham Place, Kenton, HA3 9ND, HA3 — £660,000 • 5 bed • 2 bath • 1357 ft²






































































































