**Standout Features:**
- Modern top-floor apartment in a gated community
- Spacious living room with Juliet balcony offering abundant natural light
- Open-plan kitchen with ample storage, ideal for cooking enthusiasts
- Large master bedroom with en suite bathroom
- Convenient location near Enfield Lock Station and bus routes to Enfield Town Centre
- Close proximity to Gunpowder Park for outdoor activities
- Low council tax and modern double-glazing enhances energy efficiency
**Potential Concerns:**
- Leasehold property with average ground rent and high service charges
- Located in an area with high crime rates; caution advised
**Summary:**
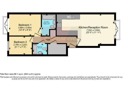
Discover contemporary urban living in this modern top-floor apartment located in a desirable gated community in Enfield. The spacious living room welcomes you with its stylish laminate flooring and Juliet balcony, filling the space with light. The open-plan kitchen is perfect for the culinary enthusiast, boasting generous countertop and storage space. The master bedroom features an en suite, providing added convenience, while the second double bedroom accommodates family or guests comfortably.
Ideally positioned just a short walk from Enfield Lock Station with multiple bus routes nearby, commuting and shopping couldn't be easier. Gunpowder Park is also within walking distance, offering great green space for joggers and families alike. While the area does have a history of higher crime rates, this could be an appealing investment for those looking for rental potential or a starter home. With fast broadband and an excellent mobile signal, this property caters to modern lifestyles, making it a fantastic opportunity that won’t last long!
2 bedroom flat for sale in Velocity Way, Enfield, EN3 — £250,000 • 2 bed • 2 bath • 627 ft²
2 bedroom flat for sale in Magnetic Crescent, Enfield, EN3 — £265,000 • 2 bed • 1 bath • 628 ft²
2 bedroom flat for sale in Velocity Way, Enfield, EN3 — £300,000 • 2 bed • 1 bath • 577 ft²
2 bedroom apartment for sale in Enstone Road, Enfield, EN3 — £250,000 • 2 bed • 2 bath • 775 ft²
1 bedroom flat for sale in Faraday House, 1 Velocity Way, Enfield, EN3 — £230,000 • 1 bed • 1 bath • 417 ft²
2 bedroom flat for sale in Magnetic Crescent, Enfield, EN3 — £295,000 • 2 bed • 1 bath • 667 ft²






















































