**Standout Features:**
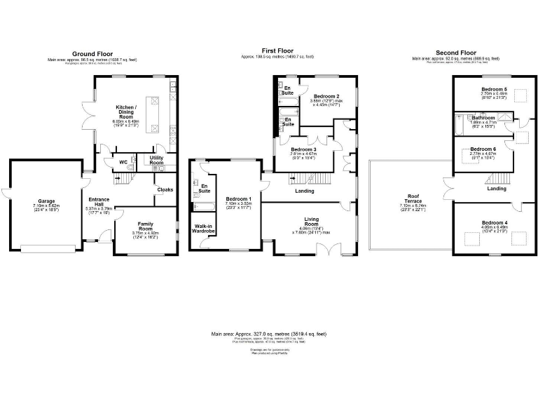
- Spacious 6-bedroom, 4-bathroom detached home spanning approximately 3,519 sq. ft.
- Located in a desirable area south of the city center, just a 10-minute walk to Cambridge South Station.
- Modern energy-efficient features, including solar panels and Velfac double glazing.
- Large landscaped garden with multiple seating areas and a greenhouse, ideal for outdoor entertaining.
- Double garage and block-paved driveway for ample parking.
**Concise Summary:**
Discover your dream home in this impressive modern detached residence, offering 3,519 sq. ft. of flexible living space in a sought-after location. Perfectly designed for large families, the house features six spacious bedrooms and four well-appointed bathrooms. Enjoy cooking and entertaining in the expansive kitchen/dining room, which opens to a beautifully landscaped garden, providing an inviting outdoor escape. Natural light floods every room through large windows, while high ceilings enhance the open and airy atmosphere.
Positioned just steps away from Clay Farm Park and a quick walk to the city center, this property combines urban convenience with suburban tranquility. Families will appreciate the proximity to excellent schools, including Trumpington Park Primary and The Perse School, ensuring quality education options. With energy-efficient solar panels, low crime rates, and a thriving local community, this residence offers comfort and security in an affluent area. Don’t miss the chance to make this extraordinary house your home—homes like this are in high demand and won’t last long!
5 bedroom detached house for sale in Rutherford Road, Cambridge, Cambridgeshire, CB2 — £1,650,000 • 5 bed • 4 bath • 2264 ft²
5 bedroom detached house for sale in Beaumont Road, Cambridge, CB1 — £1,250,000 • 5 bed • 4 bath • 2465 ft²
4 bedroom detached house for sale in Corn Lane, Trumpington, CB2 — £700,000 • 4 bed • 3 bath • 1491 ft²
5 bedroom detached house for sale in Southwell Drive, Trumpington, Cambridge, CB2 — £1,150,000 • 5 bed • 3 bath • 2100 ft²
5 bedroom detached house for sale in Moorfield, Harston, Cambridge, CB22 — £1,300,000 • 5 bed • 3 bath • 3564 ft²
6 bedroom detached house for sale in Clarkson Road, Cambridge, Cambridgeshire, CB3 — £2,350,000 • 6 bed • 3 bath • 3425 ft²


















































































































































































































