Large plot, double garage and substantial reception space for family living.
Four first-floor bedrooms; master with en-suite shower room
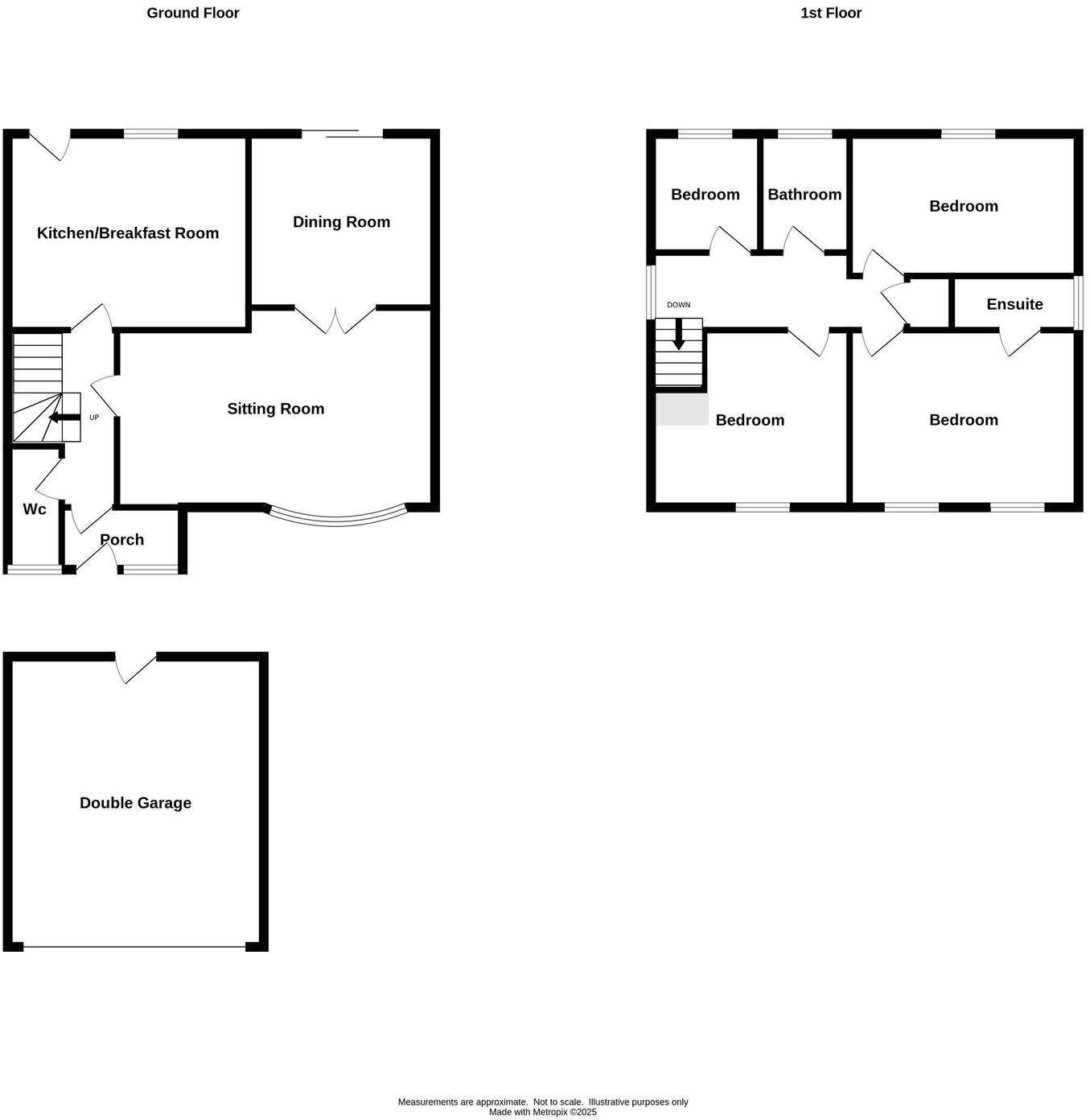
Set on a large plot in a sought-after Netherton location, this four-bedroom detached home offers a generous, family-friendly layout across two floors. The ground floor provides two large reception rooms, a well-proportioned sitting room and separate dining room, plus a breakfast kitchen and guest cloakroom — a practical arrangement for daily family living and entertaining.
Upstairs are four bedrooms including a master with en-suite and a modern house bathroom. Bedrooms two and three are good sized; bedroom four is noticeably small and suited to a single bed, nursery or home office. The property benefits from a driveway, double garage and a secluded, well-maintained rear garden ideal for outdoor family time.
There are clear opportunities to add value: the kitchen dates from the 1980s and would benefit from updating, and the property is of solid-brick construction with mixed glazing and no confirmed cavity insulation. Services are all connected, EPC C, and mains gas central heating provides reliable warmth, but buyers should budget for refurbishment and possible energy-efficiency improvements.
This house will suit growing families seeking space, good local schools and convenient amenities, or buyers looking to enhance and personalise a substantial family home in a popular residential street.
4 bedroom detached house for sale in Church Road, NETHERTON, Dudley, DY2 0JJ, DY2 — £350,000 • 4 bed • 2 bath • 1471 ft²
4 bedroom semi-detached house for sale in Lodge Crescent, Netherton, Dudley, DY2 0HF, DY2 — £255,000 • 4 bed • 2 bath • 1126 ft²
3 bedroom semi-detached house for sale in 42 Darby End Road, Netherton, Dudley, DY2 9JR, DY2 — £225,000 • 3 bed • 1 bath • 1439 ft²
4 bedroom end of terrace house for sale in York Road, Dudley, DY2 — £265,000 • 4 bed • 1 bath • 877 ft²
4 bedroom end of terrace house for sale in Walker Street, Dudley, DY2 — £230,000 • 4 bed • 2 bath • 786 ft²
3 bedroom semi-detached house for sale in Cradley Road, Netherton, Dudley, DY2 9RJ, DY2 — £250,000 • 3 bed • 1 bath • 952 ft²






























































































